Handleiding
Je bekijkt pagina 15 van 63

-
15
-
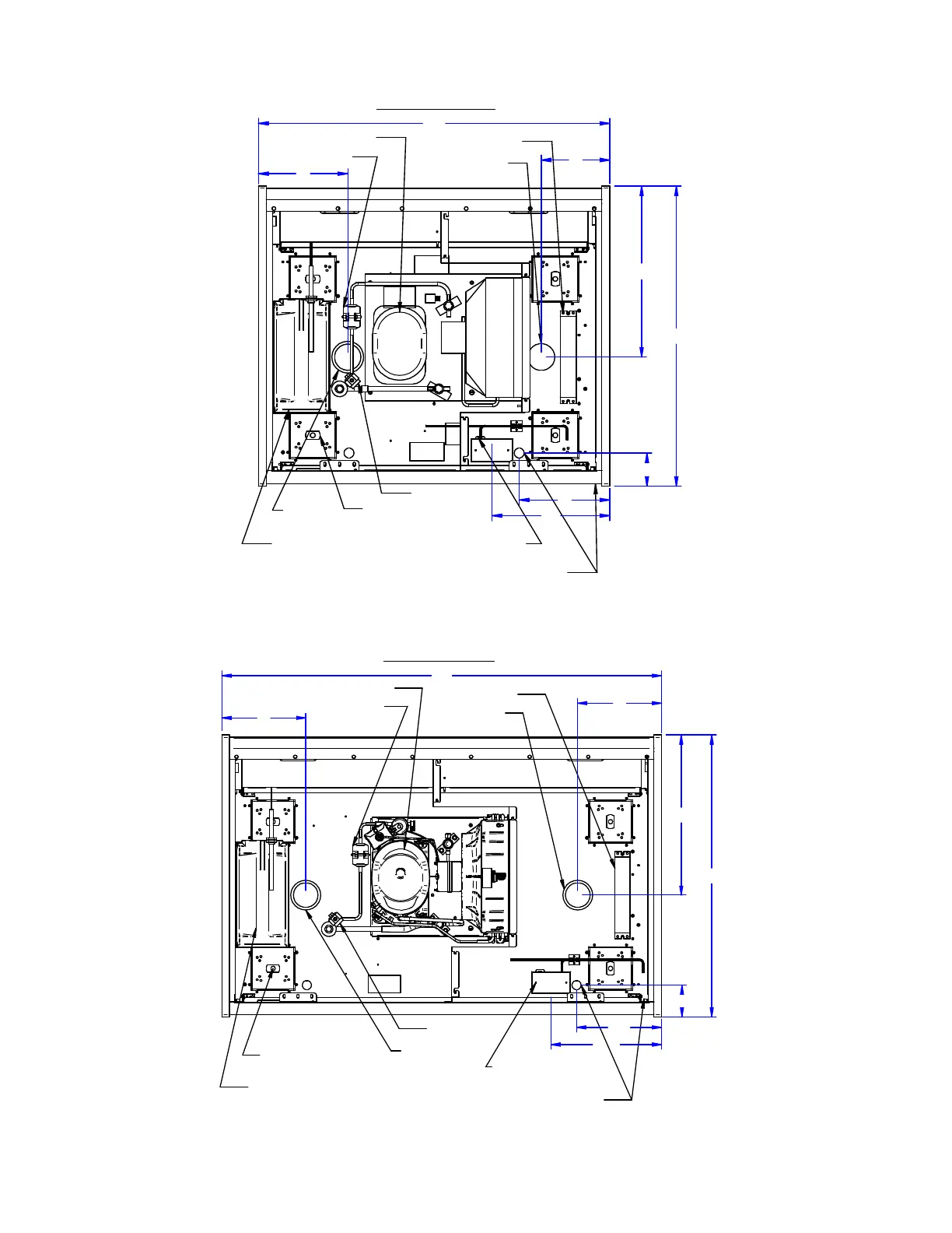
Floor ITR & ITRSS 36 Self Contained
CONDENSING UNIT
CONDENSATE
EVAPORATOR
OR PUMP
POWER SUPPLY
ELECTRICAL
CONNECTION BOX
ACESS HOLE
2.75
O
ACESS
HOLE 2.75
O
FILTER DRIER
SIGHT GLASS
ELECTRICAL
CONNECTION .88
O
FRONT TOP VIEW
30.8
36
7
9
17.5
9
3.4
LEG LEVELER PLATES
OR CASTER POCKETS
12
Floor ITR & ITRSS 48 Self Contained
CONDENSING UNIT
CONDENSATE
EVAPORATOR
OR PUMP
POWER SUPPLY
ELECTRICAL
CONNECTION BOX
ACESS HOLE
2.75
O
ACESS
HOLE 2.75
O
FILTER DRIER
SIGHT GLASS
ELECTRICAL
CONNECTION .88
O
FRONT TOP VIEW
LEG LEVELER PLATES
OR CASTER POCKETS
48
30.8
17.5
9
9
9.2
3.5
12.0
Bekijk gratis de handleiding van Federal ITDSS6034, stel vragen en lees de antwoorden op veelvoorkomende problemen, of gebruik onze assistent om sneller informatie in de handleiding te vinden of uitleg te krijgen over specifieke functies.
Productinformatie
Merk | Federal |
Model | ITDSS6034 |
Categorie | Koelkast |
Taal | Nederlands |
Grootte | 10063 MB |