Handleiding
Je bekijkt pagina 14 van 63

-
14
-
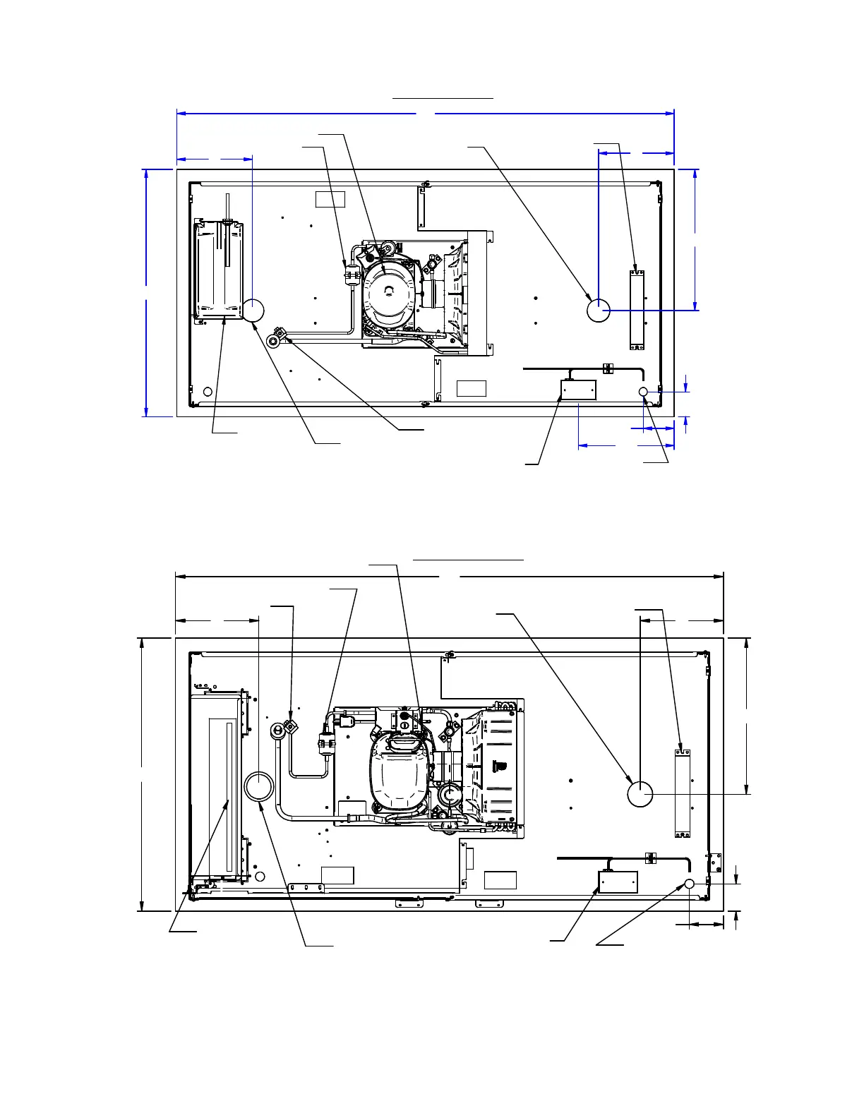
Counter ITR60 Self Contained
CONDENSING UNIT
CONDENSATE
EVAPORATOR
OR PUMP
POWER SUPPLY
ELECTRICAL
CONNECTION BOX
ACESS
HOLE 2.75
O
ACESS
HOLE 2.75
O
FILTER DRIER
SIGHT
GLASS
ELECTRICAL
CONNECTION .88
O
60
30
3.7
3
11.5
17
9
9
FRONT TOP VIEW
Counter ITRSS60 Self Contained
CONDENSING UNIT
CONDENSATE
EVAPORATOR
OR PUMP
POWER SUPPLY
ELECTRICAL
CONNECTION BOX
ACESS
HOLE 2.75
O
ACESS
HOLE 2.75
O
SIGHT GLASS
60
30
3.7
3
17
9
FRONT TOP VIEW
9
ELECTRICAL
HOLE 7/8
O
FILTER DRIER
Bekijk gratis de handleiding van Federal ITDSS3634, stel vragen en lees de antwoorden op veelvoorkomende problemen, of gebruik onze assistent om sneller informatie in de handleiding te vinden of uitleg te krijgen over specifieke functies.
Productinformatie
Merk | Federal |
Model | ITDSS3634 |
Categorie | Koelkast |
Taal | Nederlands |
Grootte | 10063 MB |