Handleiding
Je bekijkt pagina 19 van 47

- 19
-
CABINET MOUNTING COUNTER MODELS
ITD Non-Refrigerated Model Mounting
Cabinet Preparation
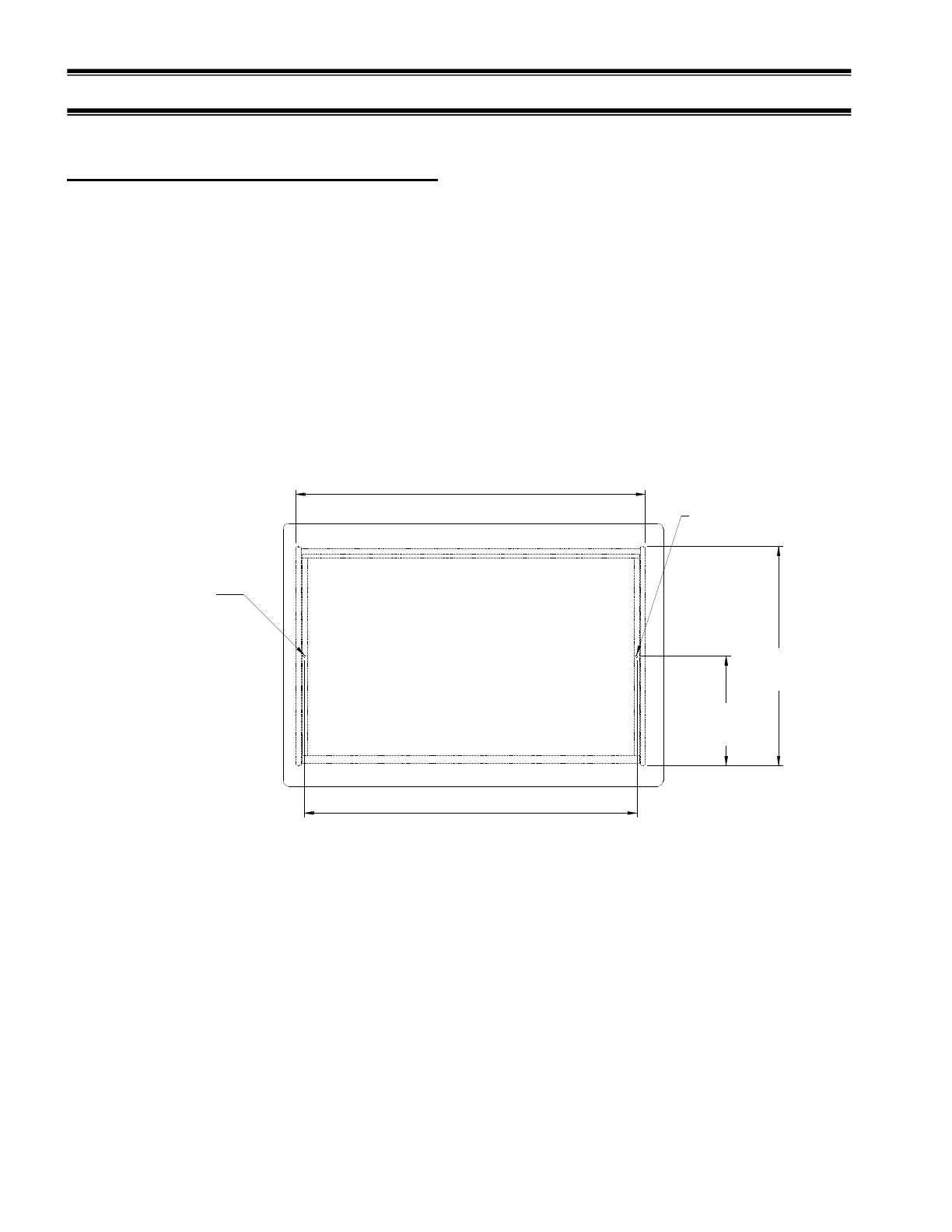
The ITD models set directly on top of counter. The Case must be attached and sealed to top of counter to
prevent counter from moving. Counter will require (2) 3/8”dia. holes to be drilled through the counter top
surface to attach case to counter. Use the diagram below for hole location.
Place case on to counter and fasten from under cabinet with (2) 10-32 screws and washers provided.
The case must be sealed to the counter using a NSF Listed Sealant.
IMPORTANT: When placing cases in a line up the number of end panels used will be different. The cut
out and hole placement dimension will need to be adjusted for each particular line up circumstance. See
LINE UPS INTALLATION section of this manual.
ITR 36" MOUNTING HOLE CENTERS 33.5"
ITR 48" MOUNTING HOLE CENTERS 45.5"
ITR 60" MOUNTING HOLE CENTERS 57.5"
ITR 36" OUTSIDE OF CASE 36.0"
ITR 48" OUTSIDE OF CASE 48.0"
ITR 60" OUTSIDE OF CASE 60.0"
DRILL 3/8
O
MOUNTING
HOLE THROUGH COUNTER
DRILL 3/8
O
MOUNTING
HOLE THROUGH COUNTER
FRONT
TOP VIEW
30.0
OUTSIDE
OF CASE
15.0
MOUNTING HOLE
CASE CENTER
Bekijk gratis de handleiding van Federal ITD6034, stel vragen en lees de antwoorden op veelvoorkomende problemen, of gebruik onze assistent om sneller informatie in de handleiding te vinden of uitleg te krijgen over specifieke functies.
Productinformatie
Merk | Federal |
Model | ITD6034 |
Categorie | Koelkast |
Taal | Nederlands |
Grootte | 6399 MB |