Handleiding
Je bekijkt pagina 11 van 47

- 11
-
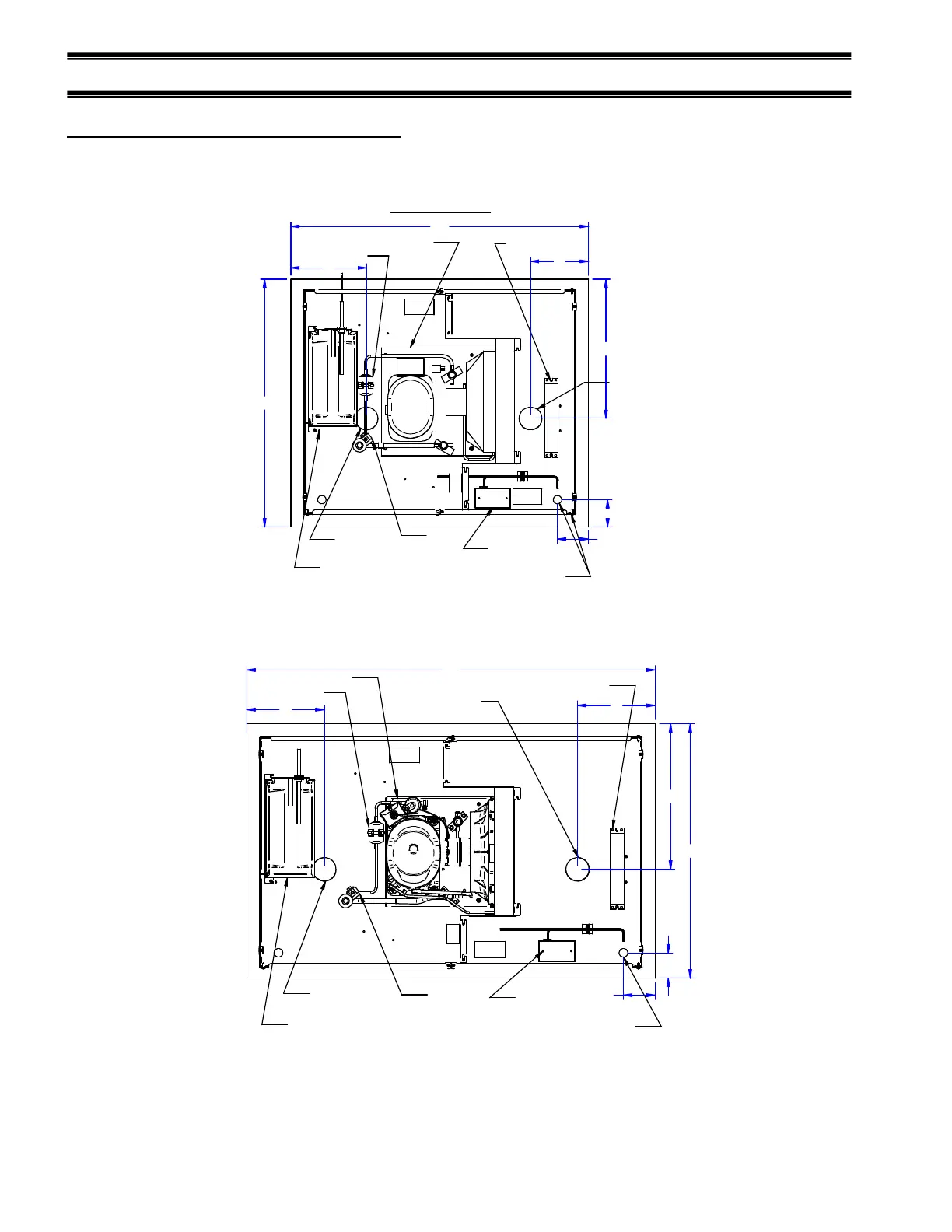
BASE COMPONENT LAYOUTS
Refrigerated Self Contained Models
Counter ITR36 Self Contained
CONDENSING UNIT
CONDENSATE
EVAPORATOR
OR PUMP
POWER SUPPLY
ELECTRICAL
CONNECTION BOX
ACESS
HOLE 2.75
O
ACESS
HOLE 2.75
O
FILTER DRIER
SIGHT
GLASS
ELECTRICAL
CONNECTION .88
O
17
3
3.7
9
7
36
30
FRONT TOP VIEW
Counter ITR48 Self Contained
CONDENSING UNIT
CONDENSATE
EVAPORATOR
OR PUMP
POWER SUPPLY
ELECTRICAL
CONNECTION BOX
ACESS
HOLE 2.75
O
ACESS
HOLE 2.75
O
FILTER DRIER
SIGHT
GLASS
ELECTRICAL
CONNECTION .88
O
9
9
17
3.7
3.0
FRONT TOP VIEW
48
30
Bekijk gratis de handleiding van Federal ITD6034, stel vragen en lees de antwoorden op veelvoorkomende problemen, of gebruik onze assistent om sneller informatie in de handleiding te vinden of uitleg te krijgen over specifieke functies.
Productinformatie
Merk | Federal |
Model | ITD6034 |
Categorie | Koelkast |
Taal | Nederlands |
Grootte | 6399 MB |