Handleiding
Je bekijkt pagina 13 van 47

- 13
-
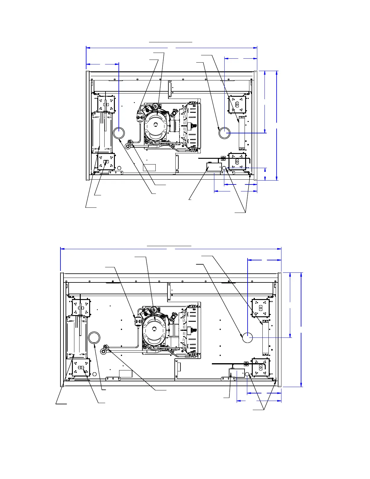
Floor ITR48 Self Contained
CONDENSING UNIT
CONDENSATE
EVAPORATOR
OR PUMP
POWER SUPPLY
ELECTRICAL
CONNECTION BOX
ACESS HOLE
2.75
O
ACESS
HOLE 2.75
O
FILTER DRIER
SIGHT GLASS
ELECTRICAL
CONNECTION .88
O
FRONT TOP VIEW
LEG LEVELER PLATES
OR CASTER POCKETS
48
30.8
17.5
9
9
9.2
3.5
12.0
Floor ITR60 Self Contained
CONDENSING UNIT
CONDENSATE
EVAPORATOR
OR PUMP
POWER SUPPLY
ELECTRICAL
CONNECTION BOX
ACESS HOLE
2.75
O
ACESS
HOLE 2.75
O
FILTER DRIER
SIGHT GLASS
ELECTRICAL
CONNECTION .88
O
FRONT TOP VIEW
LEG LEVELER PLATES
OR CASTER POCKETS
60
30.8
9
17.5
9
12.0
Bekijk gratis de handleiding van Federal ITD6026, stel vragen en lees de antwoorden op veelvoorkomende problemen, of gebruik onze assistent om sneller informatie in de handleiding te vinden of uitleg te krijgen over specifieke functies.
Productinformatie
Merk | Federal |
Model | ITD6026 |
Categorie | Koelkast |
Taal | Nederlands |
Grootte | 6399 MB |