Handleiding
Je bekijkt pagina 26 van 32

LINK
IN
IN
LINK
INLINK
23
Subwoofer Subwoofer
PRESET 6 con angolazione di 0°
PRESET 7 con angolazione di 10°
PRESET 8 con angolazione di 20°
SOSPENSIONE IN ARRAY / SUSPENDED ARRAY / SUSPENSION EN ARRAY / AUFHÄNGUNG IM ARRAY
PRESET 6 with a 0° angle
PRESET 7 with a 10° angle
PRESET 8 with a 20° angle
PRESET 6 avec l'angle d'inclinaison de 0°
PRESET 7 avec l'angle d'inclinaison de 10°
PRESET 8 avec l'angle d'inclinaison de 20°
PRESET 6 mit 0° Winkel
PRESET 7 mit 10° Winkel
PRESET 8 mit 20° Winkel
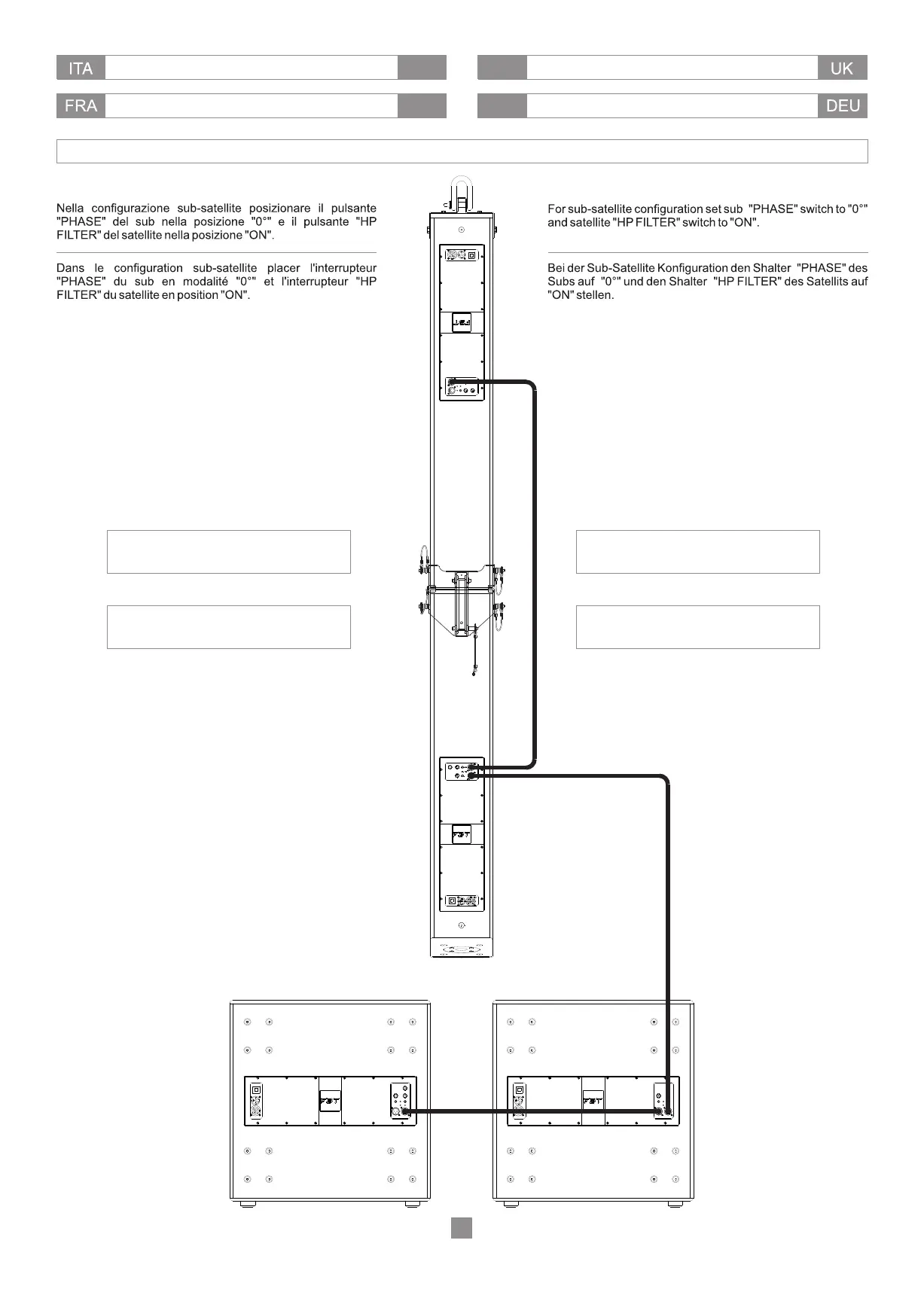
ESEMPI DI COLLEGAMENTO
CONNECTION EXAMPLES
EXEMPLES DE CONNEXION
ANSCHLUSSBEISPIELE
Bekijk gratis de handleiding van FBT Vertus CLA 406.2 A, stel vragen en lees de antwoorden op veelvoorkomende problemen, of gebruik onze assistent om sneller informatie in de handleiding te vinden of uitleg te krijgen over specifieke functies.
Productinformatie
Merk | FBT |
Model | Vertus CLA 406.2 A |
Categorie | Speaker |
Taal | Nederlands |
Grootte | 5469 MB |