Handleiding
Je bekijkt pagina 46 van 48

42
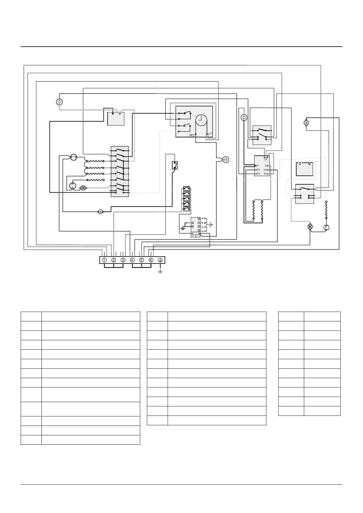
12. Circuit Diagram
1
2
a
b
e
f
c
d
1
2
AN
E
A3
B2
B3
B4
B5
B6
B7
C
D1
D3
D4
F1
F2
H1
I
I
I
H2
B1
J
J
r
bk
A4
A2
K
P028728
6
P6
5
P5
4
P4
7
P7
8P8
2
P2
1
P1
3 P3
B2
P095199
1
2
P2
P1
P095199
1
2
P2
P1
P095199
1
2
P2
P1
D2
P062362
J
b
b
b
b
b
b
b
b
b
b
b
b
b
br
br
br
br
br
br
v
v
v
v
v
or
or
y
b
y
bk
b
bk
r
r
bk
r
v
v
br
br
b
w
r
y
y
w
bk
or
w
bk
b
v
w
br
bk
r
bk
v
v
br
bk
r
r
y
b
r
b
bk
br
b
P095199
1
2
P2
P1
P0
1
2
P2
P1
P062977
1
2
P2
P1
A1
r
r
v
v
v
br
br
g
br
br
r
r
vv
b
y
y
y
Key Description
A1
Grill front switch
A2
Grill energy regulator
A3
Grill element left-hand side
A4
Grill element right-hand side
B1
Left-hand multi-function oven thermostat
B2
Left-hand multi-function oven control
B3
Left-hand multi-function oven base element
B4
Left-hand multi-function oven top element
(outer pair)
B5
Left-hand multi-function oven browning
element (inner pair)
B6
Left-hand multi-function oven fan element
B7
Left-hand multi-function oven fan
C
Clock
Key Description
D1
Right-hand fan oven thermostat
D2
Right-hand fan oven control
D3
Right-hand fan oven element
D4
Right-hand oven fan
F1
Ignition switches
F2
Ignition spark generator
H1
Oven light switch
H2
Oven light
I
Thermal cut-out
J
Neon
K
Cooling Fan
Key
The connections shown in the circuit diagram are for single-phase. The ratings are for 230 V 50 Hz.
Code
Colour
b
Blue
br
Brown
bk
Black
or
Orange
r
Red
v
Violet
w
White
y
Yellow
g/y
Green/Yellow
gr
Grey
Bekijk gratis de handleiding van Falcon Nexus 90 Dual Fuel, stel vragen en lees de antwoorden op veelvoorkomende problemen, of gebruik onze assistent om sneller informatie in de handleiding te vinden of uitleg te krijgen over specifieke functies.
Productinformatie
| Merk | Falcon |
| Model | Nexus 90 Dual Fuel |
| Categorie | Fornuis |
| Taal | Nederlands |
| Grootte | 9487 MB |



