Handleiding
Je bekijkt pagina 34 van 44

33
3
-
B
e
v
e
s
t
i
g
d
e
v
i
t
r
o
k
e
r
a
m
i
s
c
h
e
k
o
o
k
p
l
a
a
t
o
p
h
e
t
w
e
r
k
b
l
a
d
d
o
o
r
d
e
v
i
e
r
k
l
e
m
m
e
n
o
n
d
e
r
d
e
p
l
a
a
t
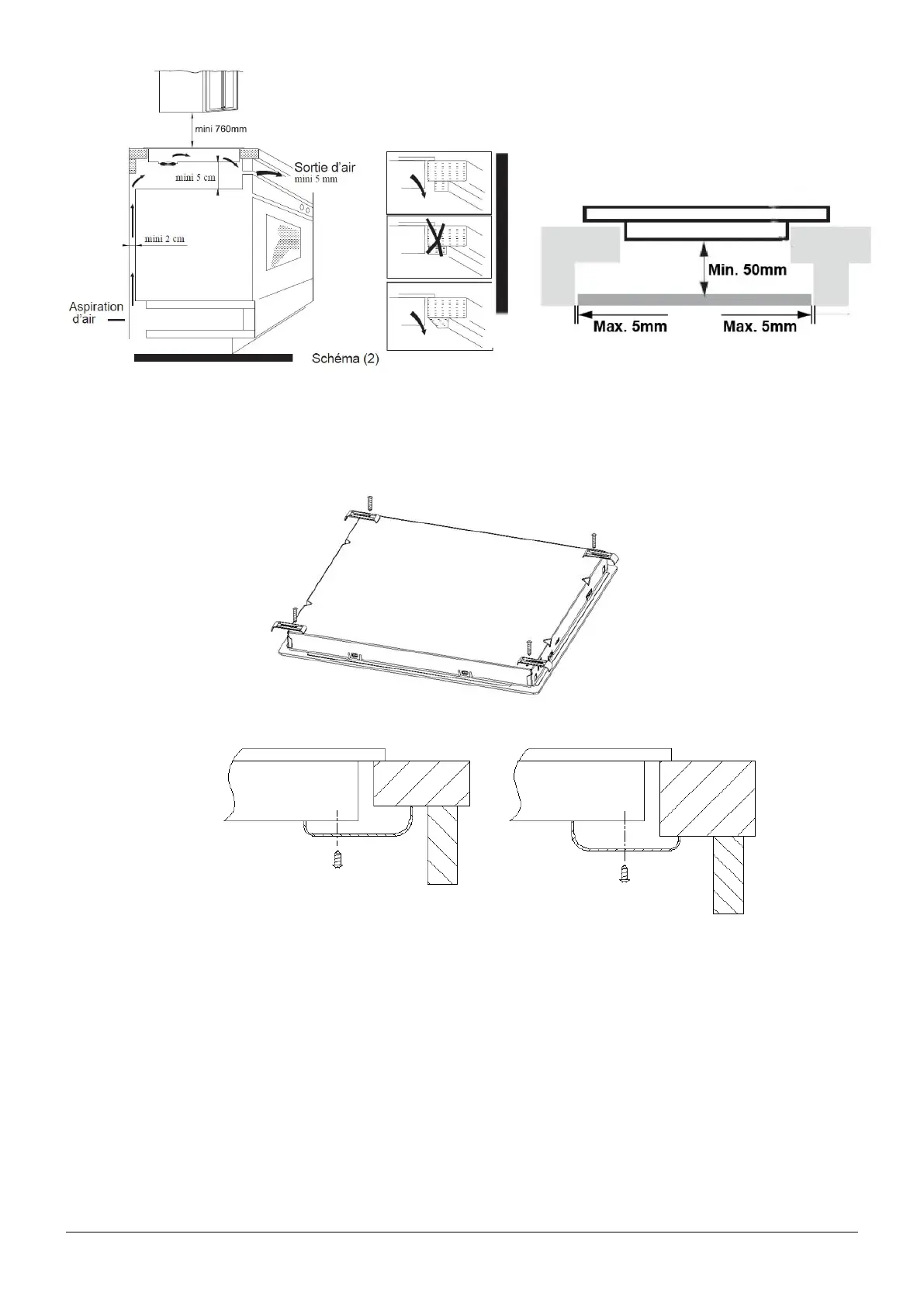
vast te schroeven.De positie van de klemmen kan worden afgesteld volgens de dikte van het
w
e
r
k
b
l
a
d
.
S
c
h
e
m
a
(
3
)
.
FAVM3540
P
l
a
a
t
Plaat
M
e
u
b
e
l
O
n
d
e
r
s
t
e
u
n
i
n
g
O
n
d
e
r
s
t
e
u
n
i
n
g
M
e
u
b
e
l
A
f
v
o
e
r
l
u
c
h
t
A
a
n
z
u
i
g
i
n
g
l
u
c
h
t
S
c
h
e
m
a
(
3
)
Bekijk gratis de handleiding van Fagor FTI372SFV, stel vragen en lees de antwoorden op veelvoorkomende problemen, of gebruik onze assistent om sneller informatie in de handleiding te vinden of uitleg te krijgen over specifieke functies.
Productinformatie
| Merk | Fagor |
| Model | FTI372SFV |
| Categorie | Fornuis |
| Taal | Nederlands |
| Grootte | 10716 MB |







