Handleiding
Je bekijkt pagina 10 van 24

10
Version 09/14 - Page 7
Light On/Off Button ( L )
On/Off switch for the incandescent light. Move the switch to "1" to turn the light ON and to "0" to turn it OFF.
Blower On/Off Button ( B )
On/Off switch for the blower. Move the switch to "1" to turn the blower ON and to "0" to turn it OFF.
Blower Speed Button ( S )
Set the blower speed control to "1" for LOW speed, "2" for MEDIUM speed and "3" for HIGH speed.
For Best Results
Start the rangehood several minutes before cooking to develop proper airow. Allow the unit to operate for several minutes after cooking
is complete to clear all smoke and odors from the kitchen.
Cleaning
The metal grease lters should be cleaned frequently in hot detergent solution or washed in the dishwasher. The grease lters are re-
moved by pressing the handle of the lter as indicated in FIGURE 6. When replacing, make sure that the lters are properly positioned
with the handles in front and visible. Clean exterior surfaces with hot soapy water. Abrasives and scouring agents can scratch rangehood
nishes and should not be used to clean nished surfaces.
Replacing the Incandescent Lights
To replace the incandescent lights, rst remove the entire bottom frame by pulling out the handles (A in FIGURE 7). Unscrew the two
bulbs and replace.
USE AND CARE INFORMATION
This rangehood system is designed to remove smoke, cooking
vapors and odors from the cooktop area.
Rangehood Control Panel
The control panel is located under the canopy. The position and
function of each control button is indicated in FIGURE 5.
FIGURE 5
281_06
FIGURE 6
FIGURE 7
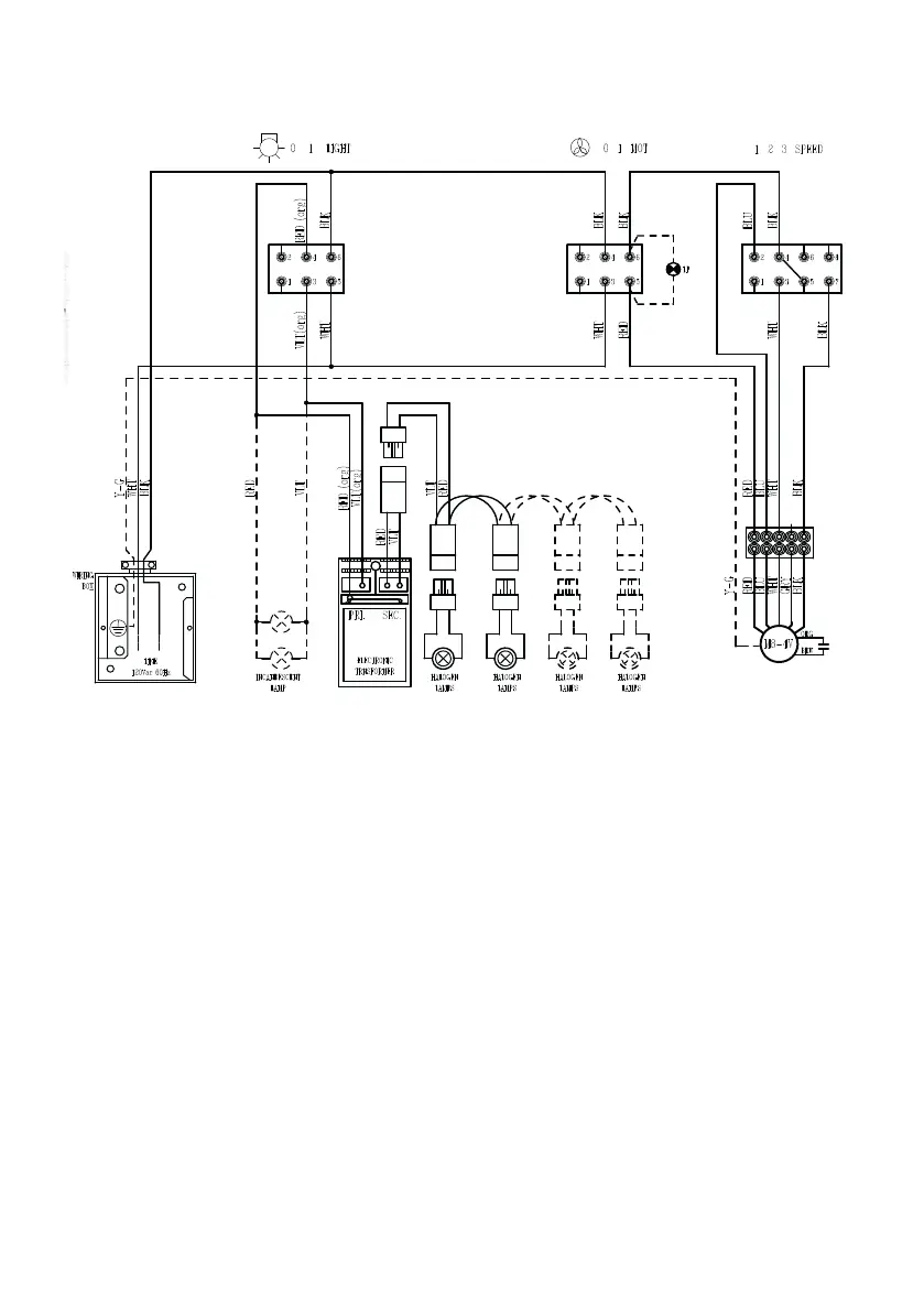
WIRING DIAGRAM
• This rangehood uses two 40W incandescent bulbs.
FIGURE 7
L B S
Schema Elettrico Schema Electrisch
Electric Diagram Esquema Eléctrico
Schéma Electrique Esquema Eléctrico
Schema Elektrisch
Schema Elettrico Schema Electrisch
Electric Diagram Esquema Eléctrico
Schéma Electrique Esquema Eléctrico
Schema Elektrisch
991.0319.110 H90_237 r1 991.0319.110 H90_237 r1
Wiring Diagram
Bekijk gratis de handleiding van Faber INSM21GR240, stel vragen en lees de antwoorden op veelvoorkomende problemen, of gebruik onze assistent om sneller informatie in de handleiding te vinden of uitleg te krijgen over specifieke functies.
Productinformatie
| Merk | Faber |
| Model | INSM21GR240 |
| Categorie | Afzuigkap |
| Taal | Nederlands |
| Grootte | 2828 MB |







