Faber CHLO28BK600 handleiding

88 pagina's
PDF beschikbaar

Handleiding

Je bekijkt pagina 56 van 88
56
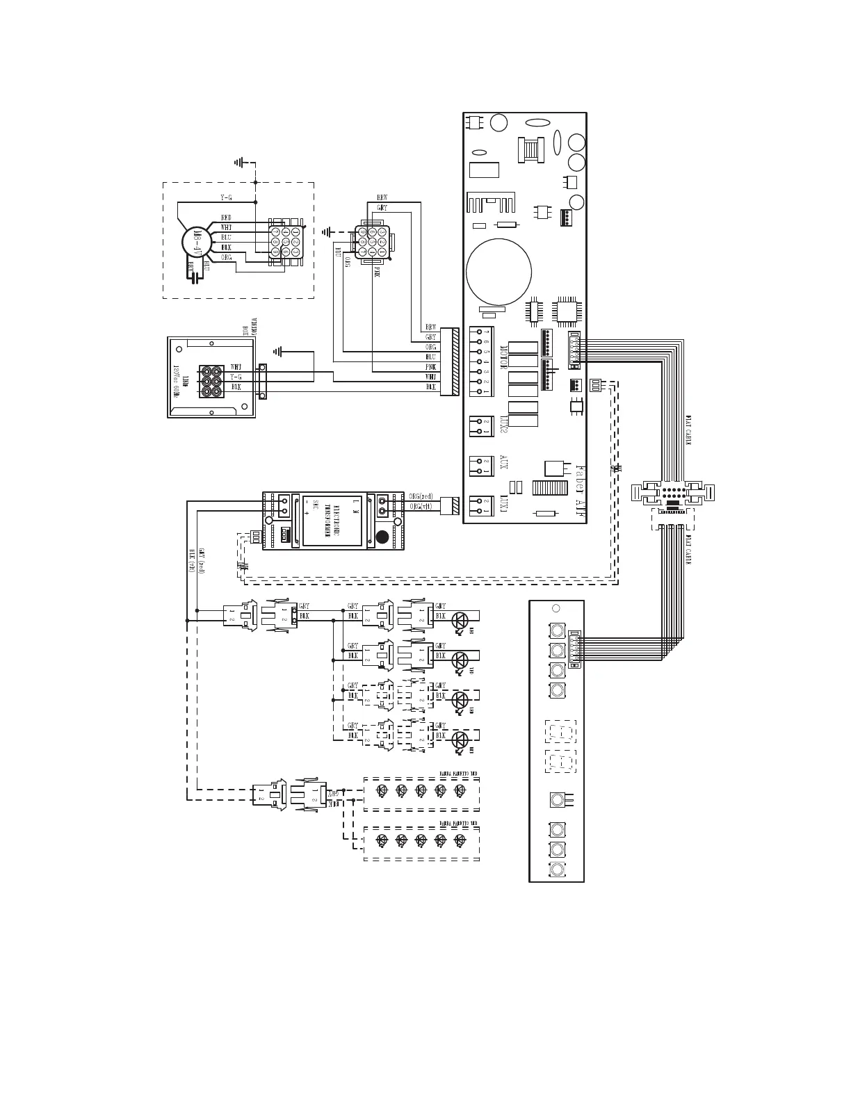
Schéma de câblage

Bekijk gratis de handleiding van Faber CHLO28BK600, stel vragen en lees de antwoorden op veelvoorkomende problemen, of gebruik onze assistent om sneller informatie in de handleiding te vinden of uitleg te krijgen over specifieke functies.

Productinformatie

MerkFaber
ModelCHLO28BK600
CategorieAfzuigkap
TaalNederlands
Grootte10762 MB