Eurolite AKKU IP Pixel Tube 360° PRO CRMX handleiding
Handleiding
Je bekijkt pagina 9 van 40
00159111, Version 1.0
9/40
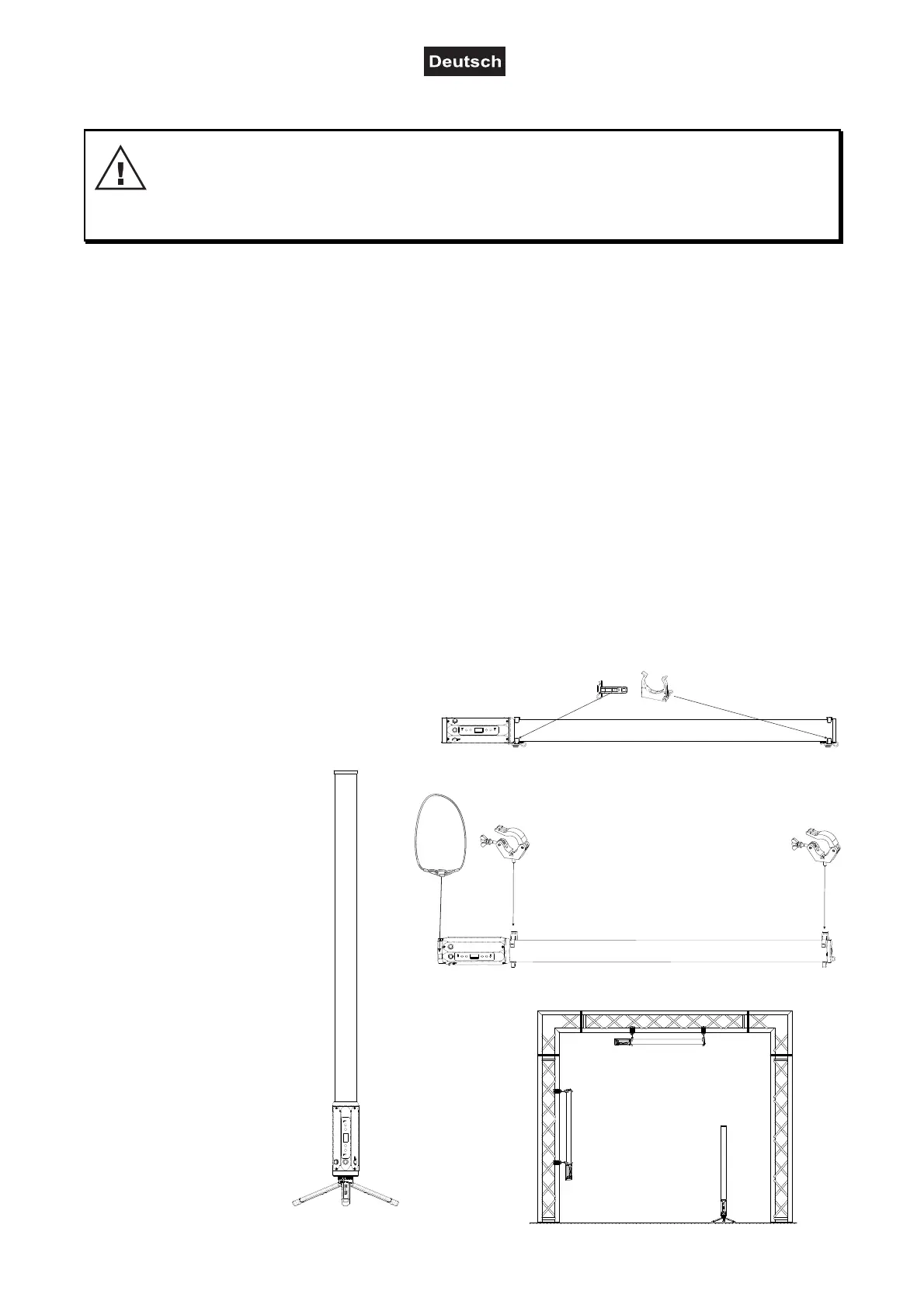
INSTALLATION
WARNUNG! Verletzungsgefahr durch Herabfallen
Über Kopf installierte Geräte können beim Herabstürzen erhebliche Verletzungen verursachen!
Stellen Sie sicher, dass das Gerät sicher installiert ist und nicht herunterfallen kann. Die Montage
darf nur durch eine Fachkraft erfolgen, die mit den Gefahren und den einschlägigen Vorschriften
hierfür vertraut ist.
1 Das Gerät kann mit dem Dreibein-Stativ (im Lieferumfang enthalten) auf dem Boden aufgestellt oder mit
Hilfe der beiden Befestigungs-/Montageclips (auch im Lieferumfang enthalten) an einer Traverse oder
einer anderen geeigneten Struktur befestigt werden. Die Montage darf niemals freischwingend erfolgen.
2 Die tragende Struktur muss mindestens für das Zehnfache aller montierten Geräte ausgelegt sein.
3 Sperren Sie den Arbeitsbereich während der Montage und arbeiten Sie von einer stabilen Plattform aus.
4 Verwenden Sie Montagematerial, das für die Struktur geeignet ist und die Last des Geräts tragen kann.
Geeignetes Montagematerial finden Sie im Abschnitt „Zubehör“.
5 Das Gerät lässt sich über zwei geeignete TPC-Klammern an Ihrem Traversensystem befestigen.
Verwenden Sie eine Klammer mit einer M10-Schraube.
6 Bringen Sie die beiden Befestigungs-/Montageclips, wie in folgender Abbildung gezeigt, an der Pixel-
Röhre an. Verwenden Sie immer auch die beiliegenden Splinte (Federstecker).
7 Schrauben Sie je eine M10-Schraube in das Montageloch an der Seite der Befestigungs-/Montageclips
und schrauben Sie diese dann zusammen mit der TPC-Klammer fest.
8 Hängen Sie die TPC-Klammer in die Traverse ein und ziehen Sie die Feststellschraube fest.
9 Sichern Sie das Gerät mit einem Fangseil oder einer anderen geeigneten Einrichtung zusätzlich ab.
Diese zweite Aufhängung muss auf Grundlage der aktuellsten Arbeitsschutzbestimmungen ausreichend
dimensioniert und so angebracht sein, dass im Fehlerfall der Hauptaufhängung kein Teil der Installation
herabfallen kann. Für die Befestigung eines Fangseils ist eine entsprechende Öse am Gerät montiert.
Befestigen Sie das
Sicherungsseil so, dass
der Fallweg des Geräts
nicht mehr als 20 cm
betragen kann.
10 Nach der Montage
muss das Gerät
regelmäßig gewartet
und überprüft werden,
um mögliche Korrosion,
Verformung und
Lockerung zu
vermeiden.
Bekijk gratis de handleiding van Eurolite AKKU IP Pixel Tube 360° PRO CRMX, stel vragen en lees de antwoorden op veelvoorkomende problemen, of gebruik onze assistent om sneller informatie in de handleiding te vinden of uitleg te krijgen over specifieke functies.
Productinformatie
| Merk | Eurolite |
| Model | AKKU IP Pixel Tube 360° PRO CRMX |
| Categorie | Verlichting |
| Taal | Nederlands |
| Grootte | 4787 MB |






