Handleiding
Je bekijkt pagina 3 van 76

120
10
3
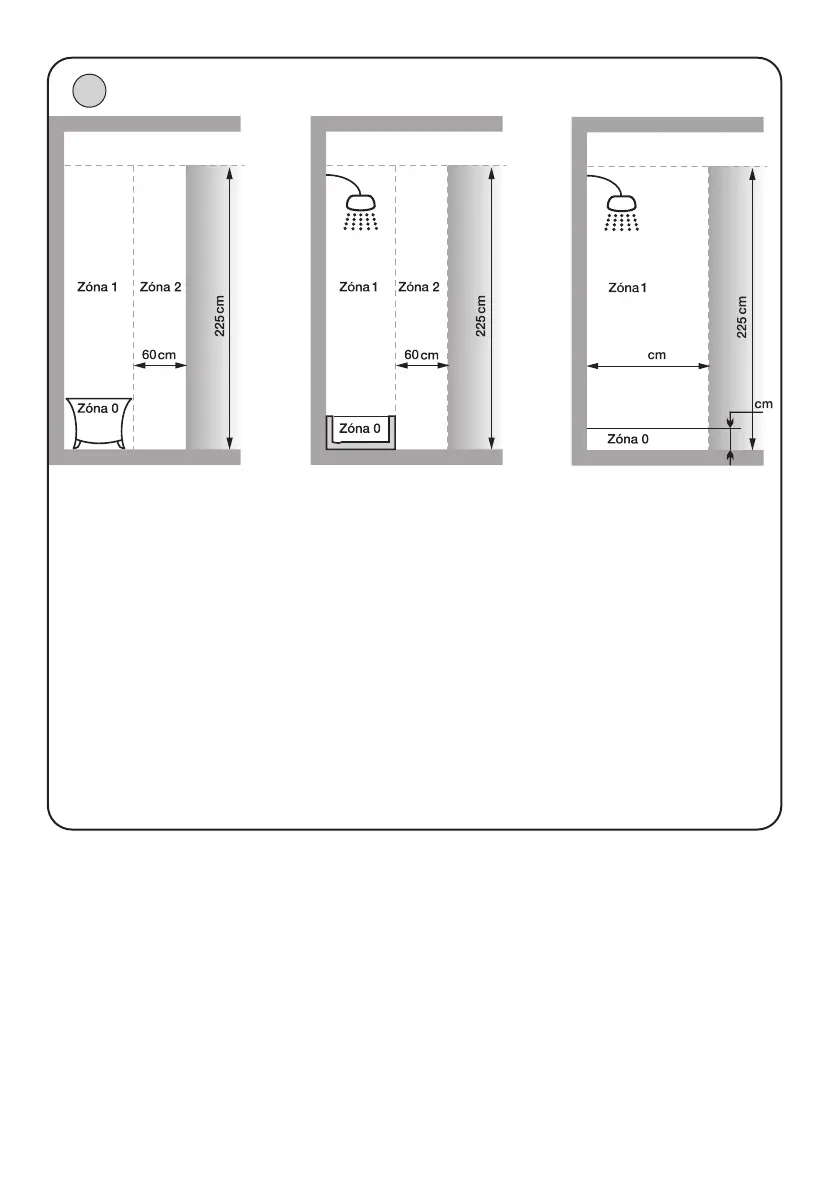
Zóna 0 = Vnitřní prostor vany nebo sprchového koutu
Zóna 0 = Vnútorný priestor vany, alebo sprchy
Zone 0 = Internal space for a bathtub or a shower unit
0. Zóna = Belső tér egy fürdőkád vagy zuhanyzó egység
Strefa 0 = Wewnętrzna przestrzeń wanny lub kabiny prysznicowej
Cona 0 = Notranji prostor kopalne kadi ali tuš kabine
Vyöhyke 0 = Kylpyammeen tai suihkunurkan sisätila
Zona 0 = Vonios arba dušo kabinos vidaus erdvė
0. zona = Vannas vai dušas kabīnes iekšpuse
Zone 0 = Inneres der Badewanne oder Duschkabine
Bekijk gratis de handleiding van ETA Warmie 0624 90000, stel vragen en lees de antwoorden op veelvoorkomende problemen, of gebruik onze assistent om sneller informatie in de handleiding te vinden of uitleg te krijgen over specifieke functies.
Productinformatie
Merk | ETA |
Model | Warmie 0624 90000 |
Categorie | Heater |
Taal | Nederlands |
Grootte | 6460 MB |
Caratteristiche Prodotto
Soort bediening | Draaiknop |
Kleur van het product | Black, White |
Aantal vermogenniveau's | 3 |
Breedte | 435 mm |
Diepte | 220 mm |