ETA Frost handleiding
Handleiding
Je bekijkt pagina 4 van 60

120
10
4
Obrázky jsou pouze ilustrační; dodané příslušenství a výrobek se mohou mírně lišit.
Obrázky sú len ilustračné; dodané príslušenstvo a výrobok sa môžu mierne líšiť.
The pictures are only illustrative, the supplied accessory and appliance may dier.
A képek csak illusztrációk.
Ilustracje są tylko poglądowe.
CZ
SK
GB
HU
PL
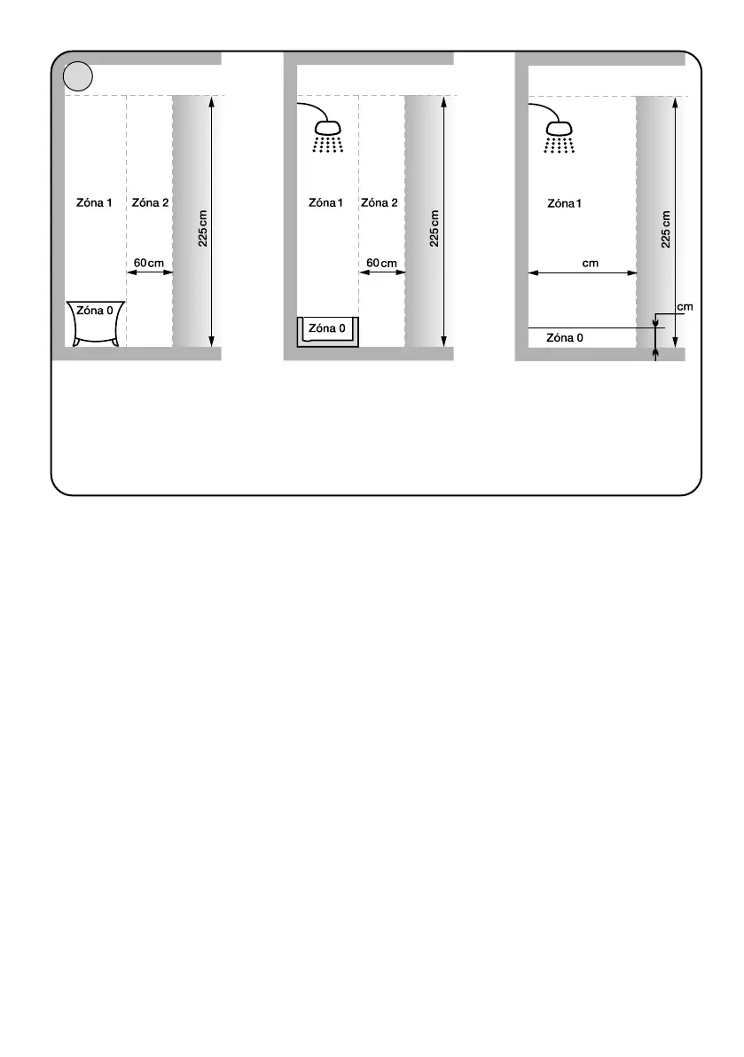
Zóna 0 = Vnitřní prostor vany nebo sprchového koutu
Zóna 0 = Vnútorný priestor vany, alebo sprchy
Zone 0 = Internal space for a bathtub or a shower unit
0. Zóna = Belső tér egy fürdőkád vagy zuhanyzó egység
Strefa 0 = Wewnętrzna przestrzeń wanny lub kabiny prysznicowej
Zone 0 = Innere Räume der Wanne oder Duschecke
Bekijk gratis de handleiding van ETA Frost, stel vragen en lees de antwoorden op veelvoorkomende problemen, of gebruik onze assistent om sneller informatie in de handleiding te vinden of uitleg te krijgen over specifieke functies.
Productinformatie
| Merk | ETA |
| Model | Frost |
| Categorie | Ventilator |
| Taal | Nederlands |
| Grootte | 5749 MB |






