Ergotron DM12-1005-1 handleiding
Handleiding
Je bekijkt pagina 4 van 17

4 of 17
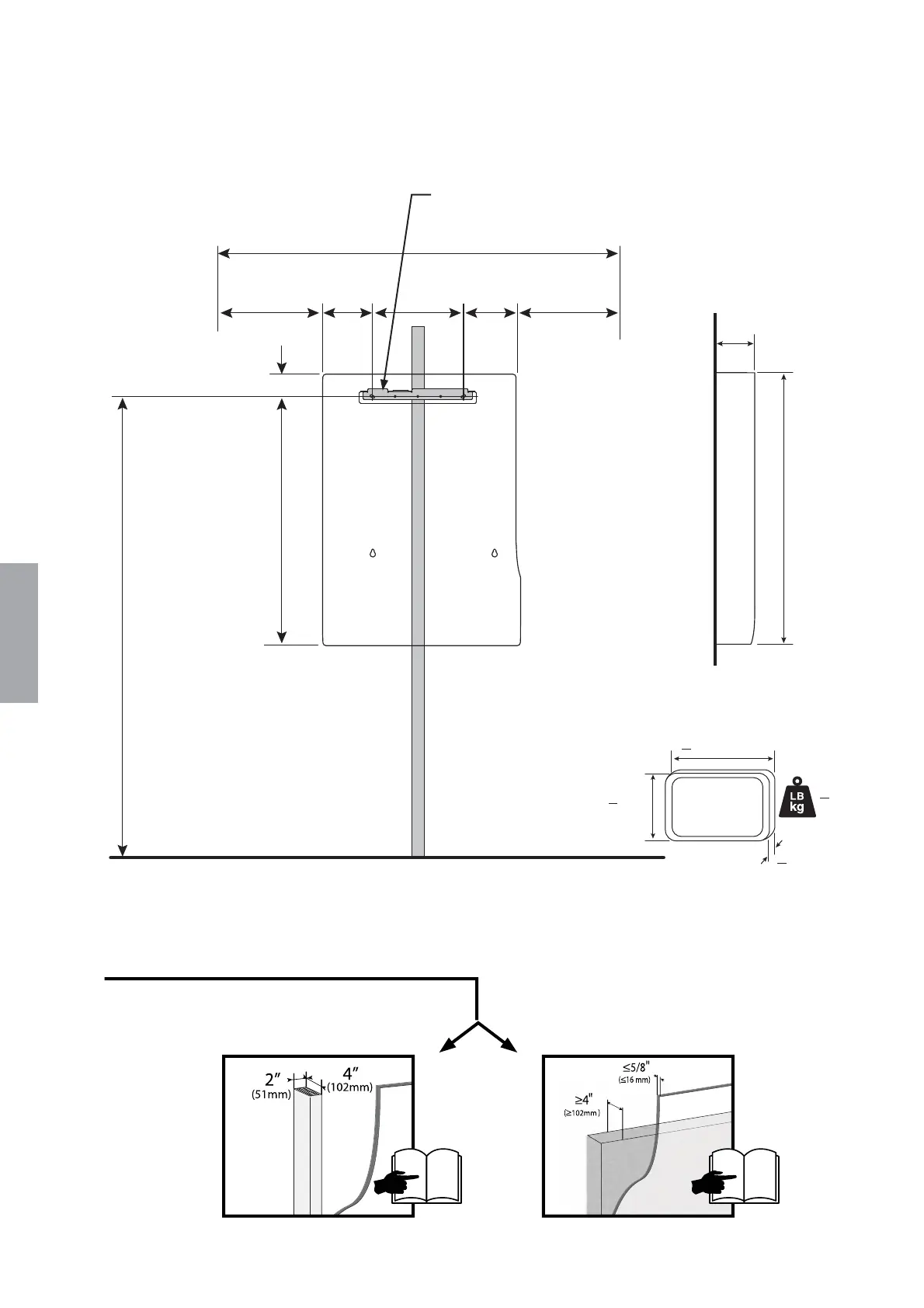
< 3 lbs
(1.36 kg)
< 11.4" (289 mm)
4” (102 mm)6" (152 mm)
< 8.5"
(215 mm)
< 1"
(25 mm)
3"
(74 mm)
6"
(151 mm)
62”-68”
(158-173 cm)
32.75"
(831 mm)
35.6"
(905 mm)
7"
(178 mm)
11.8"
(300 mm)
35.3"
(900 mm)
6.5”
(168 mm)
1
2
85
ENGLISH
888-61-070-G-02 rev. C • 01/14
MOUNTING CONSIDERATIONS
Individual tablet or chromebook weight:
Individual dimensions (including cover):
Space Requirements:
When mounting to wood stud, at least one screw in the upper mounting
bracket must be installed in a stud (preferably the center hole).
Mounting
Holes
Recommended Mounting Height Above Floor
CONCRETE
WOOD STUD
HOLLOW WALL
Bekijk gratis de handleiding van Ergotron DM12-1005-1, stel vragen en lees de antwoorden op veelvoorkomende problemen, of gebruik onze assistent om sneller informatie in de handleiding te vinden of uitleg te krijgen over specifieke functies.
Productinformatie
| Merk | Ergotron |
| Model | DM12-1005-1 |
| Categorie | Niet gecategoriseerd |
| Taal | Nederlands |
| Grootte | 2414 MB |
Caratteristiche Prodotto
| Kleur van het product | Black, Stainless steel |
| Gewicht | 29300 g |
| Breedte | 669 mm |
| Diepte | 151 mm |
| Hoogte | 905 mm |







