EmberGlo ES5CTS handleiding
Handleiding
Je bekijkt pagina 5 van 12

EmberGlo A Division of Midco International Inc
8449 96
5
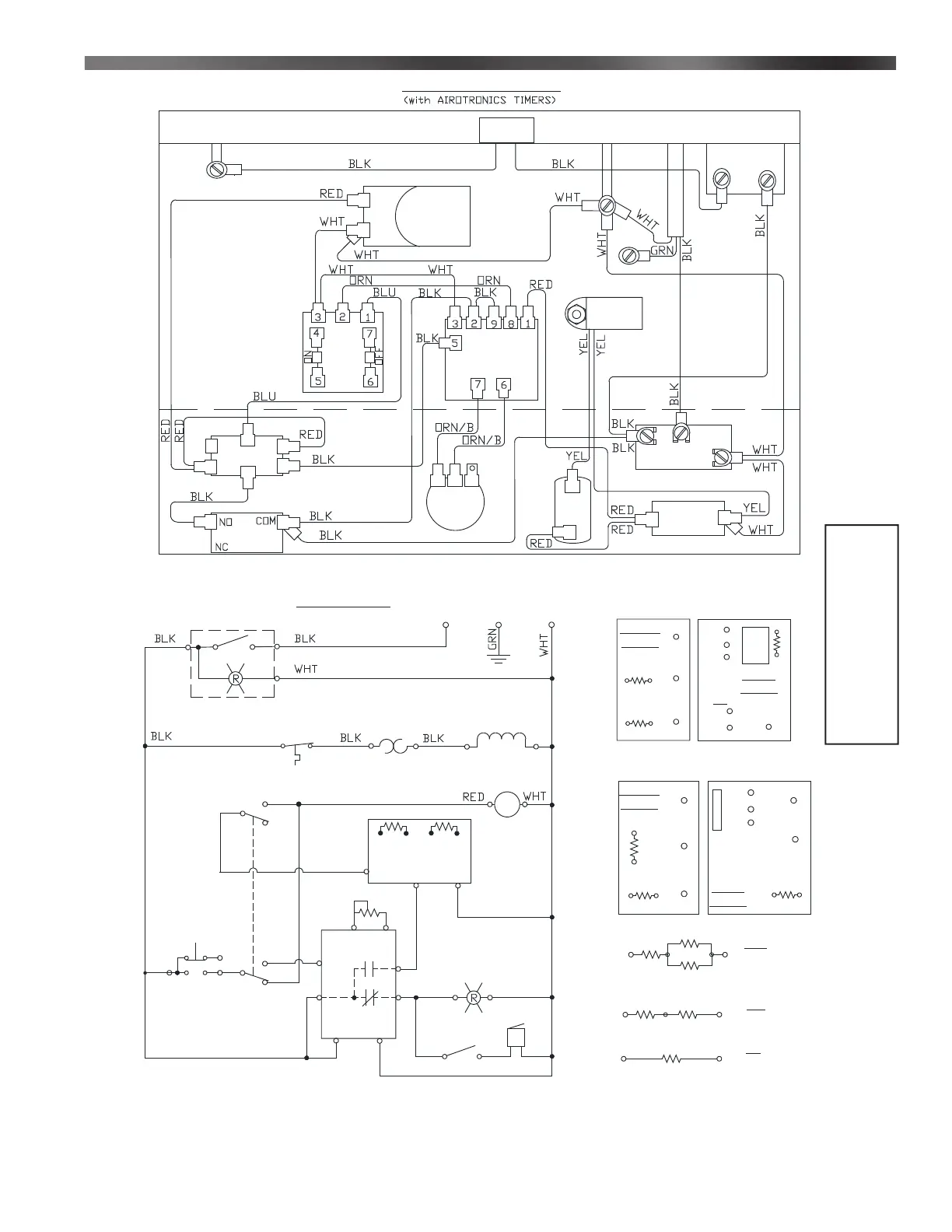
ES5 Series - Schematic & Wiring Diagrams
ES5CT, ES5CT18, ES5CTS & ES5CTS18
OPEN @ 350°F
PUMP /
SOLENOID
P/S
READY LIGHT
THERMOSTAT
THERMAL
FUSE
HEATING
ELEMENT
L1
GND
NL
120 VAC
COM
BLU
PUSH
BUTTON
PILOT
ON / OFF
NO
NC
SCHEMATIC
1500 Watts
(OPT - 1800 Watts)
BLK
RED
BLK
WHT
8406-92
YEL
YEL
SIGNAL SW
BUZZER
RED
ON
0.2 SEC
22K OHMS
OFF
20 SEC
2M OHMS
COM
NO
INITIATE
AC
NEUT
NC
SHOT
TIMER
8406-64
1
8
7
6
5
9
2
3
EXT RES
20 MIN / 1 MEG
AC
HOT
CYCLE
TIMER
8406-92
AC
NEUT
2
3
AC
HOT
LOAD
1
CYCLE / MANUAL
SWITCH
MANUAL
CYCLE
MANUAL
CYCLE
BLU
BLU
BLK
BLK
RED
ORN
RED
BLK
BLK
LOAD
INPUT
1
-    2
+    3
6
7
CYCLE
TIMER
INITIATE
NEUT
3
7
6
NC
SHOT
TIMER
-
NO
COM
AIROTRONICS TIMERS
OFF
54
ON
1
8
9
5
HOT
2
AC
LOAD
1
INPUT
-    2
+    3
76
5
4
CYCLE
TIMER
INITIATE
3
INPUT
-
54
NO
SHOT
TIMER
NC
COM
ACP TIMERS
ON
OFF
OFF
10 SEC
TIME
150 SEC
ON
0.2 SEC
690K OHMS
580K OHMS
22K OHMS
470K OHMS
220K OHMS
220K OHMS
220K OHMS
470K OHMS
22K OHMS
READY
LIGHT
THERMOSTAT
THERMAL
FUSE
HEATING
ELEMENT
PUSH
BUTTON
ON / OFF
PILOT
HEATING
ELEMENT
LINE CORD
WIRING
DIAGRAM
FRONT PANEL
CHASSIS
FRONT PANEL
CHASSIS
1411-90
PUMP /
SOLENOID
CYCLE
TIMER
SIGNAL
SW
BUZZER
MANUAL       CYCLE
EXT
RES
SHOT
TIMER
Figure 3B
Wiring Diagrams for ES5 Series Steamers - ES5CT, ES5CT18, ES5CTS & ES5CTS18 with Mechanical Timer
Note: ES5 1800 Series Steamers have an 1800 watt heating element
NOTE: for 
Old Style 
Timer 
Steamers,   
ES5T  & 
ES5TS 
wiring 
diagrams 
refer to 
8449-96B
Bekijk gratis de handleiding van EmberGlo ES5CTS, stel vragen en lees de antwoorden op veelvoorkomende problemen, of gebruik onze assistent om sneller informatie in de handleiding te vinden of uitleg te krijgen over specifieke functies.
Productinformatie
| Merk | EmberGlo | 
| Model | ES5CTS | 
| Categorie | Niet gecategoriseerd | 
| Taal | Nederlands | 
| Grootte | 2432 MB | 








