Handleiding
Je bekijkt pagina 72 van 230

72 Installation - SVENSKA
INSTALLATION
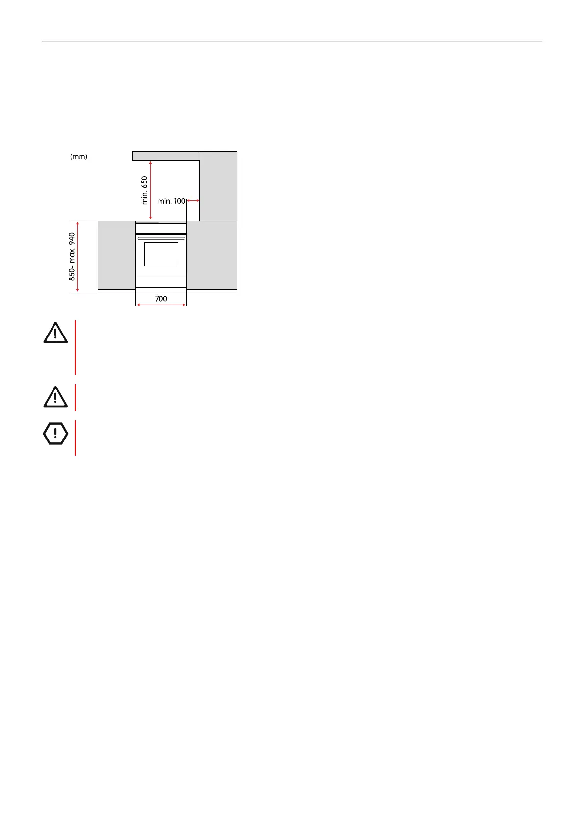
Placering av spisen
Placera ugnen enligt måtten och andra faktorer som beskrivs i detta avsnitt.
VARNING!
Brandrisk!
• Kontrollera att golvet och angränsande väggar tål temperaturer på minst 90°C.
• Installera inte ugnen bakom en dekorlucka, eftersom den riskerar att överhettas.
VARNING!
Ugnen är avsedd att placeras direkt på golvet utan stöd eller socklar.
FÖRSIKTIGHET!
Installera inte ugnen nära kraftfulla värmekällor, som t.ex. eldstäder, eftersom den höga temperaturen kan
skada ugnen.
Fäst spisen i en vägg
Genom att göra fast spisen i en vägg förhindras att den tippar.
Bekijk gratis de handleiding van Elvita CGS3740VN, stel vragen en lees de antwoorden op veelvoorkomende problemen, of gebruik onze assistent om sneller informatie in de handleiding te vinden of uitleg te krijgen over specifieke functies.
Productinformatie
| Merk | Elvita |
| Model | CGS3740VN |
| Categorie | Fornuis |
| Taal | Nederlands |
| Grootte | 19194 MB |







