Handleiding
Je bekijkt pagina 148 van 230

148 Installation - DANSK
INSTALLATION
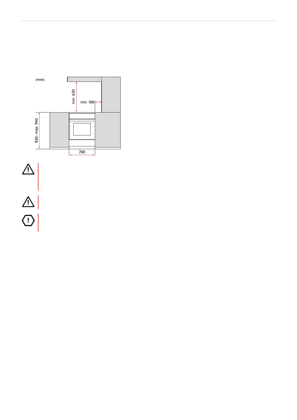
Placering af komfuret
Sørg for at placere ovnen i henhold til mål og andre faktorer beskrevet i dette afsnit.
ADVARSEL!
Risiko for brand!
• Sørg for, at gulvet og de tilstødende vægge kan modstå en temperatur på mindst 90°C.
• Placer ikke ovnen bag ved en pyntedør, da det kan blive overophedet.
ADVARSEL!
Ovnen er beregnet til at anbringes direkte på gulvet uden støtter eller sokler.
FORSIGTIG!
Anbring ikke ovnen i nærheden af kraftige varmekilder som f.eks. fastbrændselsfyr, da den høje temperatur
kan beskadige ovnen.
Fastgørelse af komfuret til en væg
Komfuret forhindres i at vælte ved at fastgøre det til en væg.
Bekijk gratis de handleiding van Elvita CGS3740VN, stel vragen en lees de antwoorden op veelvoorkomende problemen, of gebruik onze assistent om sneller informatie in de handleiding te vinden of uitleg te krijgen over specifieke functies.
Productinformatie
| Merk | Elvita |
| Model | CGS3740VN |
| Categorie | Fornuis |
| Taal | Nederlands |
| Grootte | 19194 MB |







