Handleiding
Je bekijkt pagina 110 van 230

110 Installering - NORSK
INSTALLERING
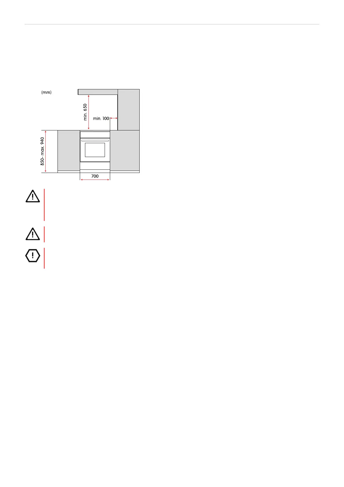
Plassering av komfyren
Pass på at ovnen plasseres i henhold til målene og de andre faktorene som er beskrevet i denne delen.
ADVARSEL!
Brannfare!
• Kontroller at gulvet og sideveggene tåler minst 90°C.
• Ikke installer ovnen bak en dekorfront. Den kan bli overopphetet.
ADVARSEL!
Ovnen er beregnet for plassering direkte på gulvet uten støtte eller sokkel.
OBS!
Ikke installer ovnen nær sterke varmekilder som f.eks. ovner med fast brensel. Den høye temperaturen kan
skade ovnen.
Feste komfyren til veggen
Ved å feste komfyren til veggen, kan du sikre deg mot at den velter.
Bekijk gratis de handleiding van Elvita CGS3740VN, stel vragen en lees de antwoorden op veelvoorkomende problemen, of gebruik onze assistent om sneller informatie in de handleiding te vinden of uitleg te krijgen over specifieke functies.
Productinformatie
| Merk | Elvita |
| Model | CGS3740VN |
| Categorie | Fornuis |
| Taal | Nederlands |
| Grootte | 19194 MB |







