Handleiding
Je bekijkt pagina 32 van 264

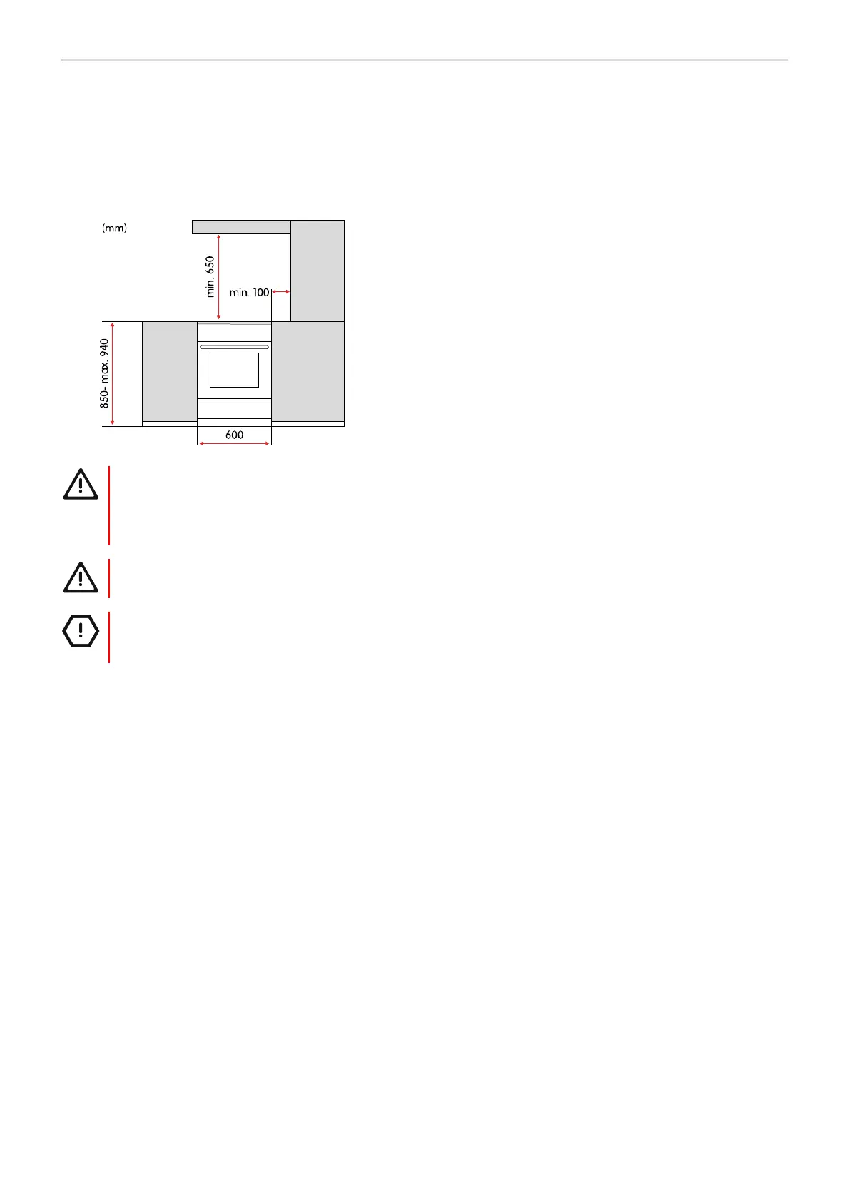
32 Installation - ENGLISH
INSTALLATION
Cooker placement
Make sure to place the oven considering the measurements and other factors described in this section.
WARNING!
Risk of fire!
• Make sure the floor and the adjacent walls are temperature resistant to at least 90 °C.
• Do not install the oven behind a decorative door, as it may become overheated.
WARNING!
The oven is intended to be placed directly on the floor, without any support or plinths.
CAUTION!
Do not install the oven near powerful heat sources, such as solid fuel stoves, as the high temperature may
damage the oven.
Secure the cooker to a wall
Securing the cooker to a wall will prevent it from tipping over.
Bekijk gratis de handleiding van Elvita CGS36231VN, stel vragen en lees de antwoorden op veelvoorkomende problemen, of gebruik onze assistent om sneller informatie in de handleiding te vinden of uitleg te krijgen over specifieke functies.
Productinformatie
Merk | Elvita |
Model | CGS36231VN |
Categorie | Fornuis |
Taal | Nederlands |
Grootte | 21697 MB |