Handleiding
Je bekijkt pagina 8 van 26

User Manual: 1517L, 1717L
SW602763 Rev C, Page 8 of 26
Chapter 3: Mounting
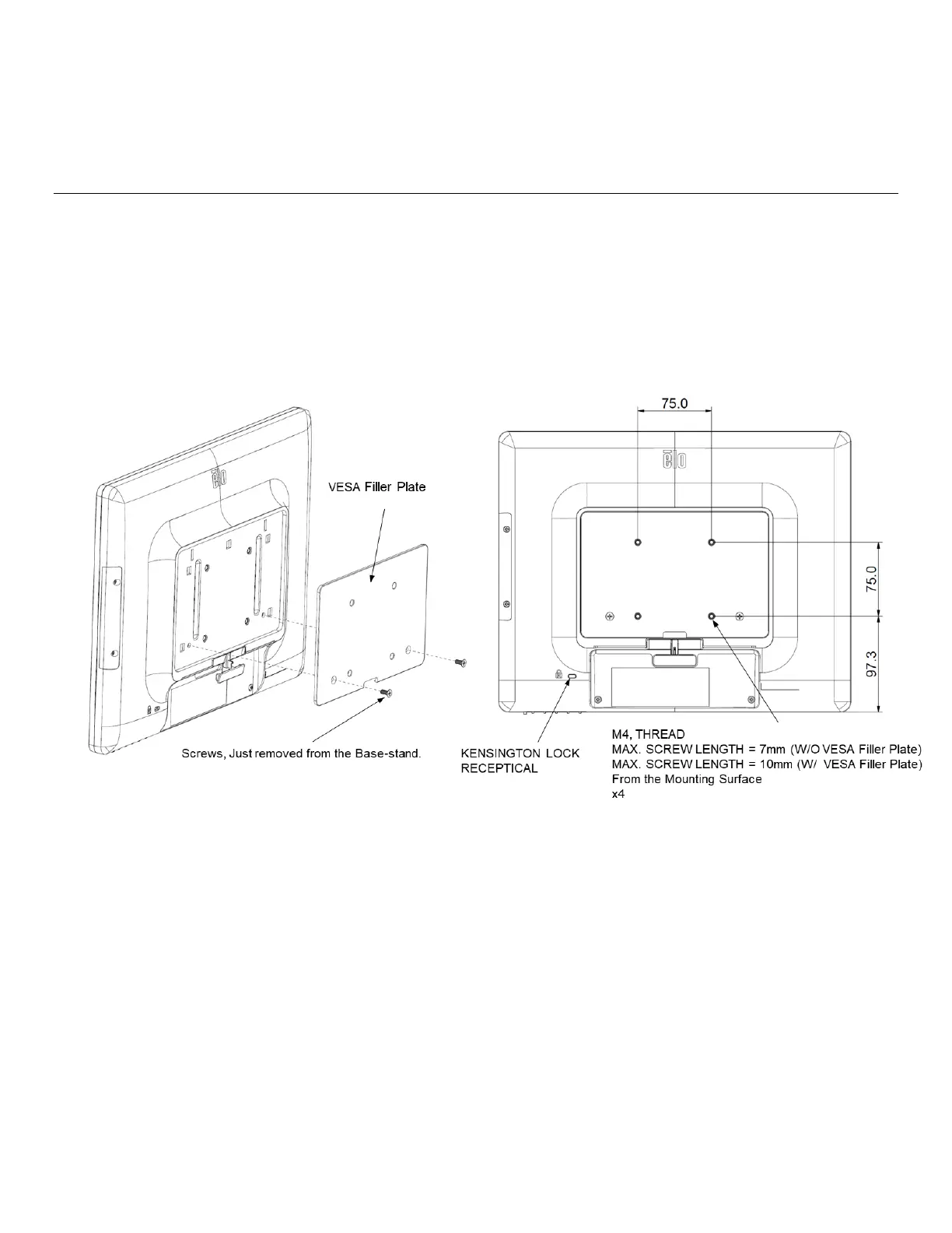
Rear VESA Mount
For the 15-inch touchmonitor, a four-hole 75x75mm mounting pattern for M4 screws is provided on
the rear of the monitor. Remove the stand using a Phillips screwdriver to access this mounting
interface. Recommend installing the VESA Filler Plate before installing the Wall-Mount. The VESA
FDMI-compliant counting is coded: VESA MIS-B, 75, C.
Bekijk gratis de handleiding van ELO ET1717L, stel vragen en lees de antwoorden op veelvoorkomende problemen, of gebruik onze assistent om sneller informatie in de handleiding te vinden of uitleg te krijgen over specifieke functies.
Productinformatie
| Merk | ELO |
| Model | ET1717L |
| Categorie | Monitor |
| Taal | Nederlands |
| Grootte | 2778 MB |







