Electrolux WS6-35 handleiding
Handleiding
Je bekijkt pagina 28 van 52

28
Installation manual
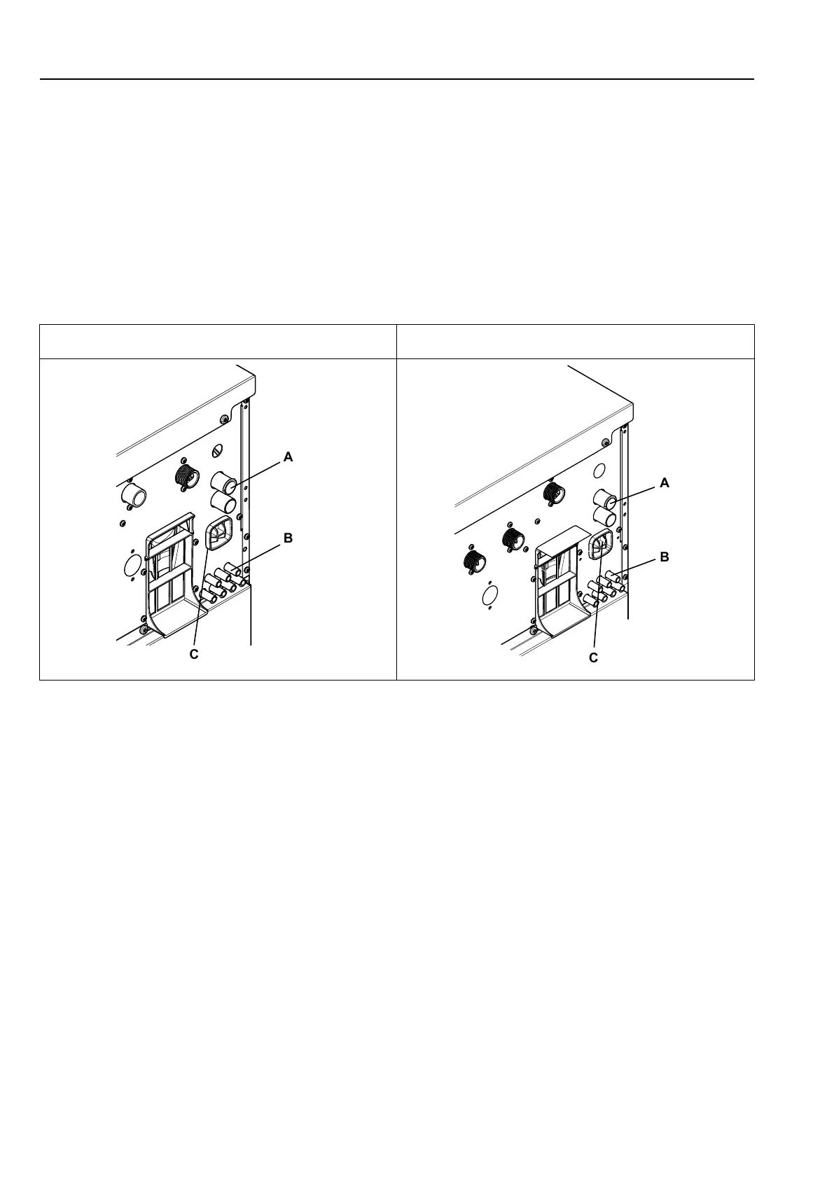
7 Connection of external dosing systems
7.1 Connection of the hoses
The machine is prepared for connection of external dosing systems or water re-use systems etc.
The connections are closed at delivery. Open any of the connections that shall be used by drilling a hole where the
hoses shall be connected.
Note!
Make sure there is no burrs left after drilling. When removing burrs make sure burrs does not fall into the si-
phon breaker.
A = ⌀ 17 mm (used for external dosing systems or systems for re-use of water).
B = ⌀ 6 mm (used for external dosing systems only).
C = Only used for external liquid manifold. (Separate instructions enclosed when ordering).
WS6–8, WS6–9, WS6–11
S7–75, S7–85, S7–105
WS6–14, WS6–20, WS6–28, WS6–35
A
B
C
A
B
C
Always connect hoses on connections (A) with a hose clamp.
For connections (B); if the hoses are made of a soft material such as silicone or similar, use a cable tie to fasten the
hose on the connection. If the hoses are made of a hard material, it is not recommended to make the connection
tighter by using a cable tie.
Note!
Equipment for external dosing must only be connected to work on pump pressure and not on network
pressure.
Bekijk gratis de handleiding van Electrolux WS6-35, stel vragen en lees de antwoorden op veelvoorkomende problemen, of gebruik onze assistent om sneller informatie in de handleiding te vinden of uitleg te krijgen over specifieke functies.
Productinformatie
| Merk | Electrolux |
| Model | WS6-35 |
| Categorie | Wasmachine |
| Taal | Nederlands |
| Grootte | 4434 MB |







