Electrolux WH6-8 handleiding
Handleiding
Je bekijkt pagina 41 van 48

Installation manual
41
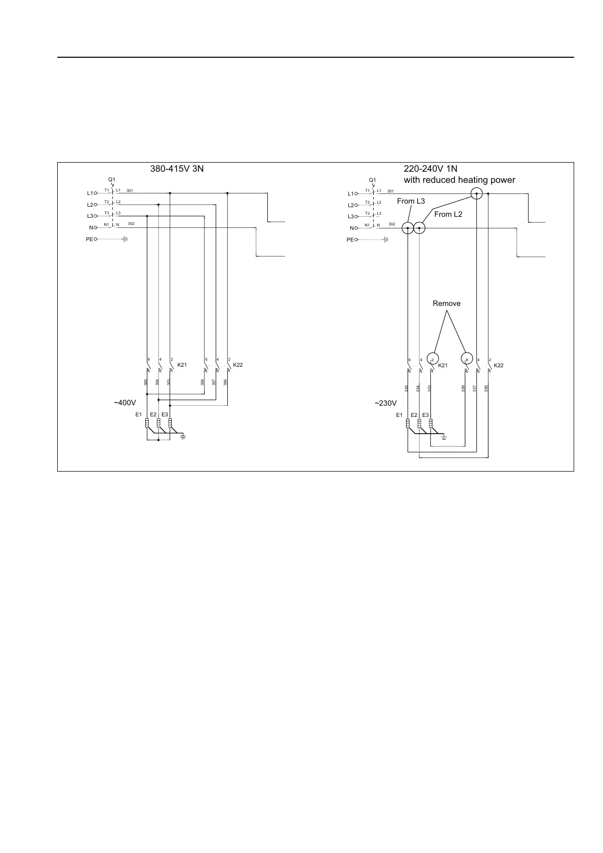
9.6.2 WH6–14 can be converted from 380-415V 3N AC to 220-240V 1N AC with reduced
power
Disconnect the power to the machine.
Demount the cover panel to the electrical connections.
Remove the cables that are connected to K21:2 and K22:6. Move the remaining cables from L2 and L3 to L1 or N ac-
cording to the figure.
301
302
~400V
357
355
358
354
353
356
3
4
1
2
K22
5
6
L1
T1
L2T2
L3T3
N1
N
Q1
3
4
5
6
1
2
K21
E1 E2 E3
L1
L2
L3
N
PE
380-415V 3N
~230V
301
302
357
355
358
354
353
356
3
4
1
2
K22
5
6
L1
T1
L2
T2
L3T3
N1 N
Q1
3
4
5
6
1
2
K21
E2 E3E1
L1
L2
L3
N
PE
220-240V 1N
with reduced heating power
Remove
From L3
From L2
fig.W00620
Remount the cover panel to the electrical connections.
Connect the power to the machine.
Check that all terminals and wires are secure and test run the machine on a short program with 60°C to ensure that it
does heat up.
Bekijk gratis de handleiding van Electrolux WH6-8, stel vragen en lees de antwoorden op veelvoorkomende problemen, of gebruik onze assistent om sneller informatie in de handleiding te vinden of uitleg te krijgen over specifieke functies.
Productinformatie
Merk | Electrolux |
Model | WH6-8 |
Categorie | Wasmachine |
Taal | Nederlands |
Grootte | 4080 MB |