Electrolux WH6-33CV handleiding
Handleiding
Je bekijkt pagina 41 van 52

Installatiehandleiding
41
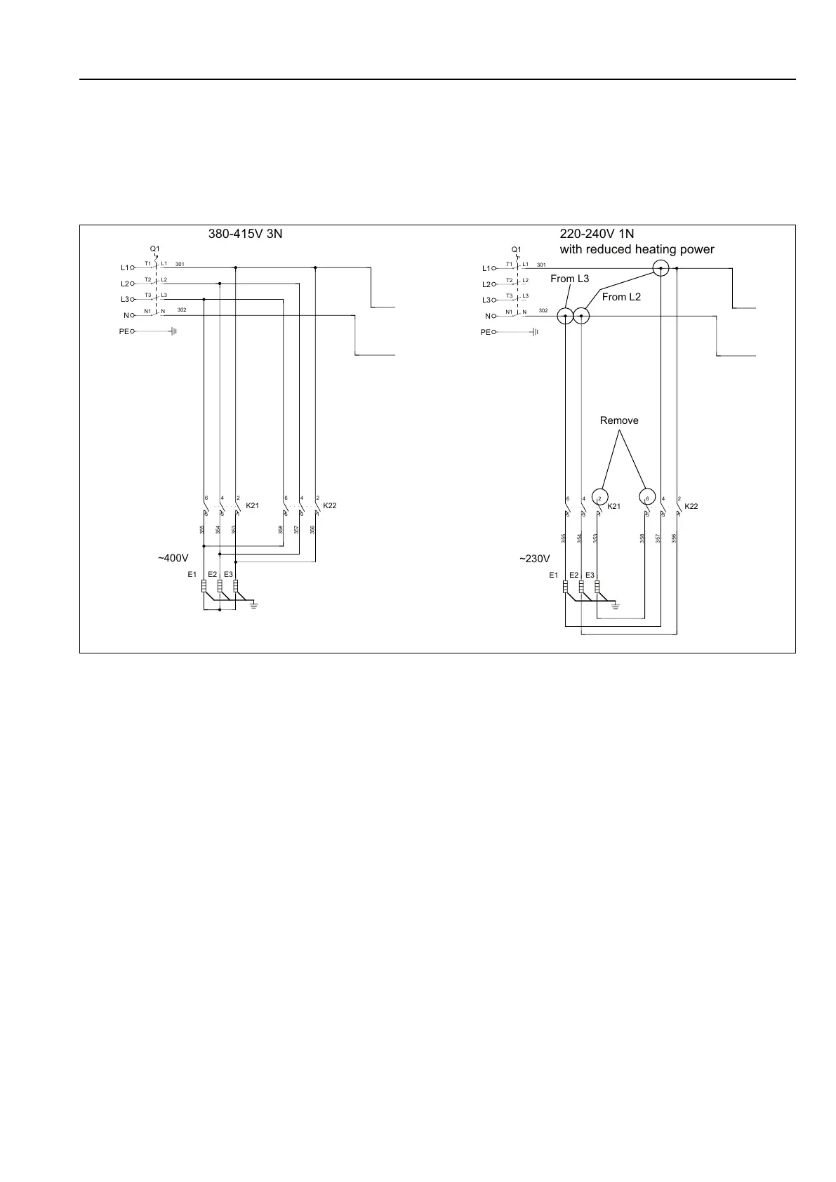
9.8.2 WH6–14 kunnen worden omgebouwd van 380-415 V 3N AC naar 220-240 V 1N AC
met een lager vermogen
Schakel de stroom naar de machine uit.
Demonteer het dekpaneel van de elektrische aansluitingen.
Verwijder de kabels die zijn aangesloten op K21:2 en K22:6. Verplaats de resterende kabels van L2 en L3 naar L1 of
N, volgens de afbeelding.
301
302
~400V
357
355
358
354
353
356
3
4
1
2
K22
5
6
L1
T1
L2T2
L3T3
N1
N
Q1
3
4
5
6
1
2
K21
E1 E2 E3
L1
L2
L3
N
PE
380-415V 3N
~230V
301
302
357
355
358
354
353
356
3
4
1
2
K22
5
6
L1
T1
L2
T2
L3T3
N1 N
Q1
3
4
5
6
1
2
K21
E2 E3E1
L1
L2
L3
N
PE
220-240V 1N
with reduced heating power
Remove
From L3
From L2
fig.W00620
Plaats het dekpaneel van de elektrische aansluitingen terug.
Sluit de spanning naar de machine aan.
Controleer of alle aansluitingen en draden goed zijn aangesloten en bevestigd en test de machine daarna met een
kort wasprogramma op 60°, om te controleren of deze werkelijk verwarmt.
Bekijk gratis de handleiding van Electrolux WH6-33CV, stel vragen en lees de antwoorden op veelvoorkomende problemen, of gebruik onze assistent om sneller informatie in de handleiding te vinden of uitleg te krijgen over specifieke functies.
Productinformatie
| Merk | Electrolux |
| Model | WH6-33CV |
| Categorie | Wasmachine |
| Taal | Nederlands |
| Grootte | 4907 MB |







