Electrolux WH6-33CV handleiding
Handleiding
Je bekijkt pagina 18 van 52

18
Installatiehandleiding
4.3 Plaatsing
Installeer de machine nabij een afvoerput of een open afvoer.
De machine moet zo worden geplaatst dat er voldoende ruimte is voor het uitvoeren van werkzaamheden door zowel
de gebruiker als servicepersoneel.
De afbeelding toont de minimale afstand t.o.v. een wand en/of andere machines. Wanneer de voorgeschreven af-
standen niet in acht worden genomen, verhindert dit gemakkelijke toegang voor onderhouds- en servicehandelingen.
A A
B
fig.X00959
A 25 mm
B 500 mm
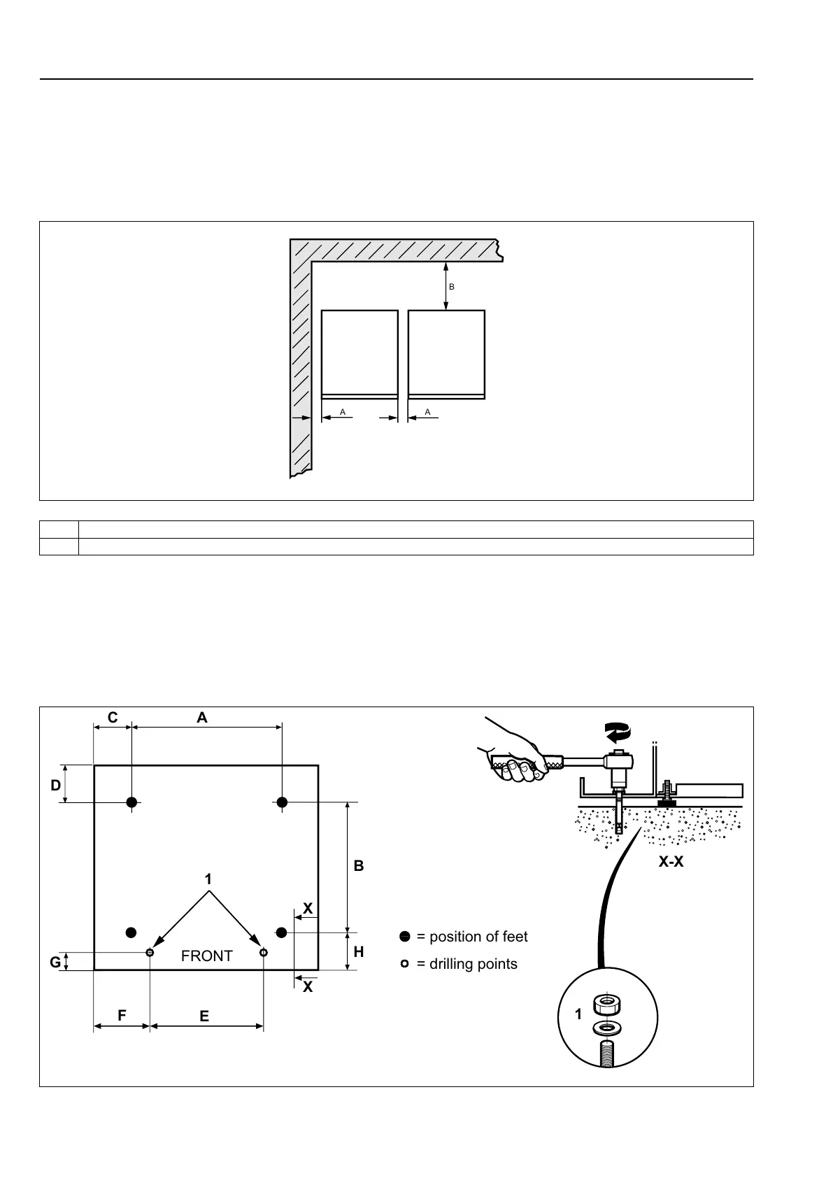
4.4 Mechanische installatie
Als de machine niet op een sokkel wordt gemonteerd, moet de machine aan de vloer worden vastgezet met de bijge-
leverde betonankers.
De tabel toont de correcte positie van de voetjes en boorpunten.
WH6–7-WH6–11: Markeer en boor twee gaten (⌀ 8 mm) van ongeveer 40 mm diep op positie (1).
WH6–14-WH6–33: Markeer en boor twee gaten (⌀ 10 mm) van ongeveer 50 mm diep op positie (1).
C A
D
G
F
E
B
H
FRONT
= drilling points
= position of feet
1
1
X
X
X-X
fig.5989C
Bekijk gratis de handleiding van Electrolux WH6-33CV, stel vragen en lees de antwoorden op veelvoorkomende problemen, of gebruik onze assistent om sneller informatie in de handleiding te vinden of uitleg te krijgen over specifieke functies.
Productinformatie
| Merk | Electrolux |
| Model | WH6-33CV |
| Categorie | Wasmachine |
| Taal | Nederlands |
| Grootte | 4907 MB |







