Electrolux W4600H handleiding
Handleiding
Je bekijkt pagina 9 van 40

Installation manual
9
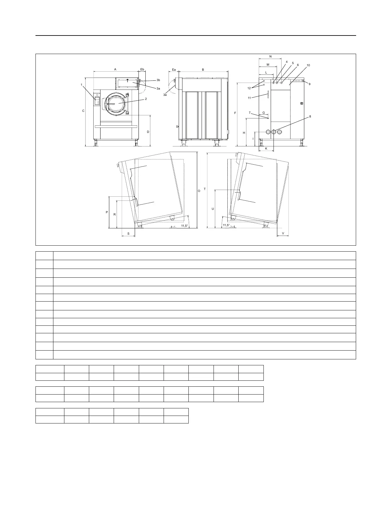
3.1.2 W4600H
A
1
C
2
D
3a
3b
BEa
3a
N
M
L
10
6
5
4
12
11
7
G
I
H
F
K
8
9
O
11,5°
S
R
P
U
T
11,5°
V
Eb
1 Operating panel
2 Door opening, ⌀ 535 mm
3a Five-compartment detergent box, front (optional)
3b Five-compartment detergent box, right hand side (optional)
4 Cold water
5 Hot water
6 Third water (optional)
7
Steam connection
8 Drain
9 Electrical connection
10 Compressed air connection
11 External liquid detergent connections, 6 pcs ⌀ 10 mm, 1 pc ⌀ 16 mm and 1 pc ⌀ 20 mm
12 Water connection, detergent injector, 3/4” (optional)
A B C D Ea Eb F G
mm
1390 1585 1975 870 300 210 1825 270
H I K L M N O P
mm
780 380 435 425 525 660 2225 935
R S T U V
mm
815 325 2200 1120 300
Bekijk gratis de handleiding van Electrolux W4600H, stel vragen en lees de antwoorden op veelvoorkomende problemen, of gebruik onze assistent om sneller informatie in de handleiding te vinden of uitleg te krijgen over specifieke functies.
Productinformatie
| Merk | Electrolux |
| Model | W4600H |
| Categorie | Wasmachine |
| Taal | Nederlands |
| Grootte | 3559 MB |







