Electrolux E8MNCC18S handleiding

48 pagina's
PDF beschikbaar

Handleiding

Je bekijkt pagina 4 van 48
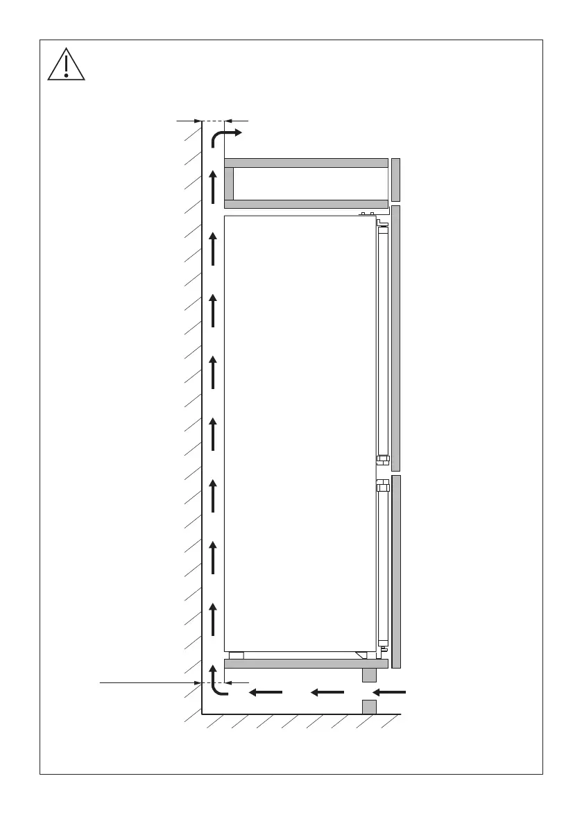
min. 38 mm
min. 38 mm
min. 200 cm
2
min. 200 cm
2
4

Bekijk gratis de handleiding van Electrolux E8MNCC18S, stel vragen en lees de antwoorden op veelvoorkomende problemen, of gebruik onze assistent om sneller informatie in de handleiding te vinden of uitleg te krijgen over specifieke functies.

Productinformatie

MerkElectrolux
ModelE8MNCC18S
CategorieKoelkast
TaalNederlands
Grootte3442 MB