Electro-Voice EVI-AC handleiding
Handleiding
Je bekijkt pagina 9 van 44

EVA Expandable Vertical Array Introduction | en 9
Electro-Voice
Installation manual
2023-01 | 04 | F01U196199
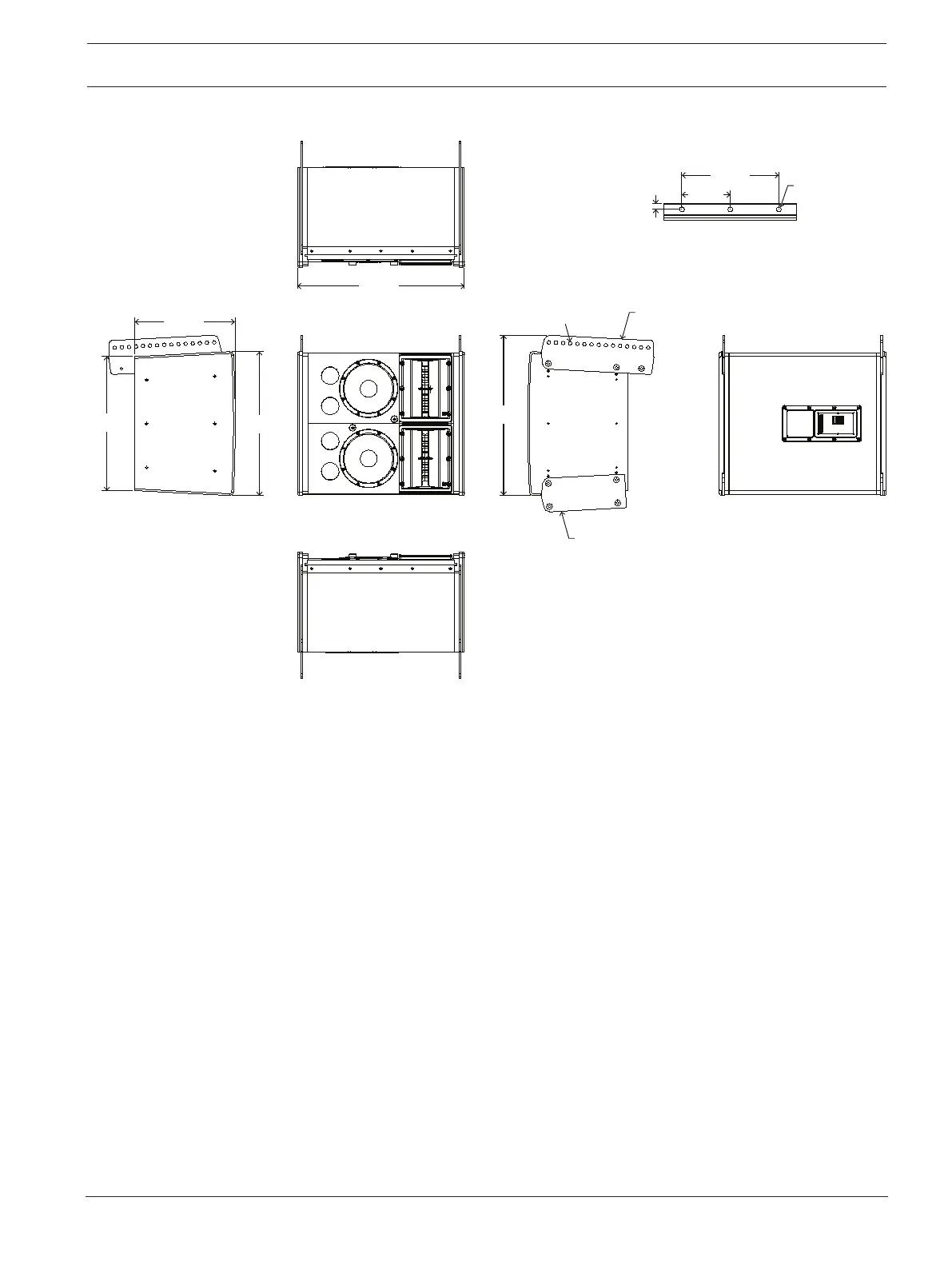
3.1 Dimensions
0.925’’
[23.50mm]
16.000’’
[406.40mm]
8.000’’
[203.20mm]
⌀0.813’’
[⌀20.65mm]
END CAP REMOVED
AND TIE PLATE SHOWN
(THIS VIEW ONLY)
EVA-SG2
GRID SHOWN
(ALL VIEWS)
⌀0.500’’
[⌀12.70mm]
22.541’’
[572.54mm]
23.500’’
[596.90mm]
14.102’’
[358.19mm]
18.855’’
[478.92mm]
20.254’’
[514.44mm]
Figure3.1: EVA-2082S/906 or EVA-2082S/126 dimensional views and spreader bar attach holes
Bekijk gratis de handleiding van Electro-Voice EVI-AC, stel vragen en lees de antwoorden op veelvoorkomende problemen, of gebruik onze assistent om sneller informatie in de handleiding te vinden of uitleg te krijgen over specifieke functies.
Productinformatie
| Merk | Electro-Voice |
| Model | EVI-AC |
| Categorie | Niet gecategoriseerd |
| Taal | Nederlands |
| Grootte | 3734 MB |







