Elation Platinum Spot LED PRO handleiding

56 pagina's
PDF beschikbaar

Handleiding

Je bekijkt pagina 51 van 56
Platinum Spot LED™
©Elation Professional, Los Angeles Ca. 51 www.ElationLighting.com
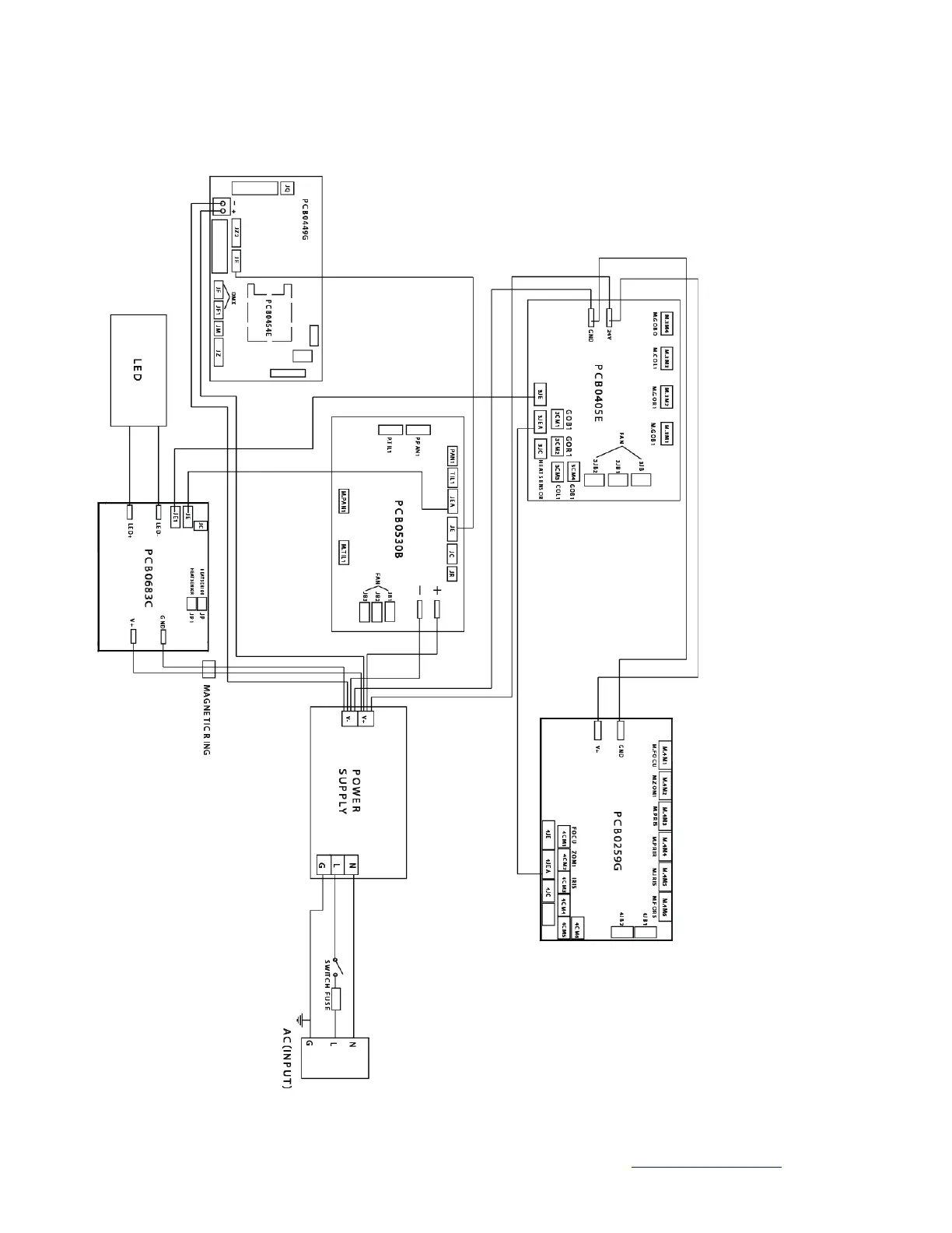
18. CIRCUIT SCHEMATICS

Bekijk gratis de handleiding van Elation Platinum Spot LED PRO, stel vragen en lees de antwoorden op veelvoorkomende problemen, of gebruik onze assistent om sneller informatie in de handleiding te vinden of uitleg te krijgen over specifieke functies.

Productinformatie

MerkElation
ModelPlatinum Spot LED PRO
CategorieVerlichting
TaalNederlands
Grootte6312 MB