Elan Minse 83646 handleiding
Handleiding
Je bekijkt pagina 4 van 16

4
Hardware Used
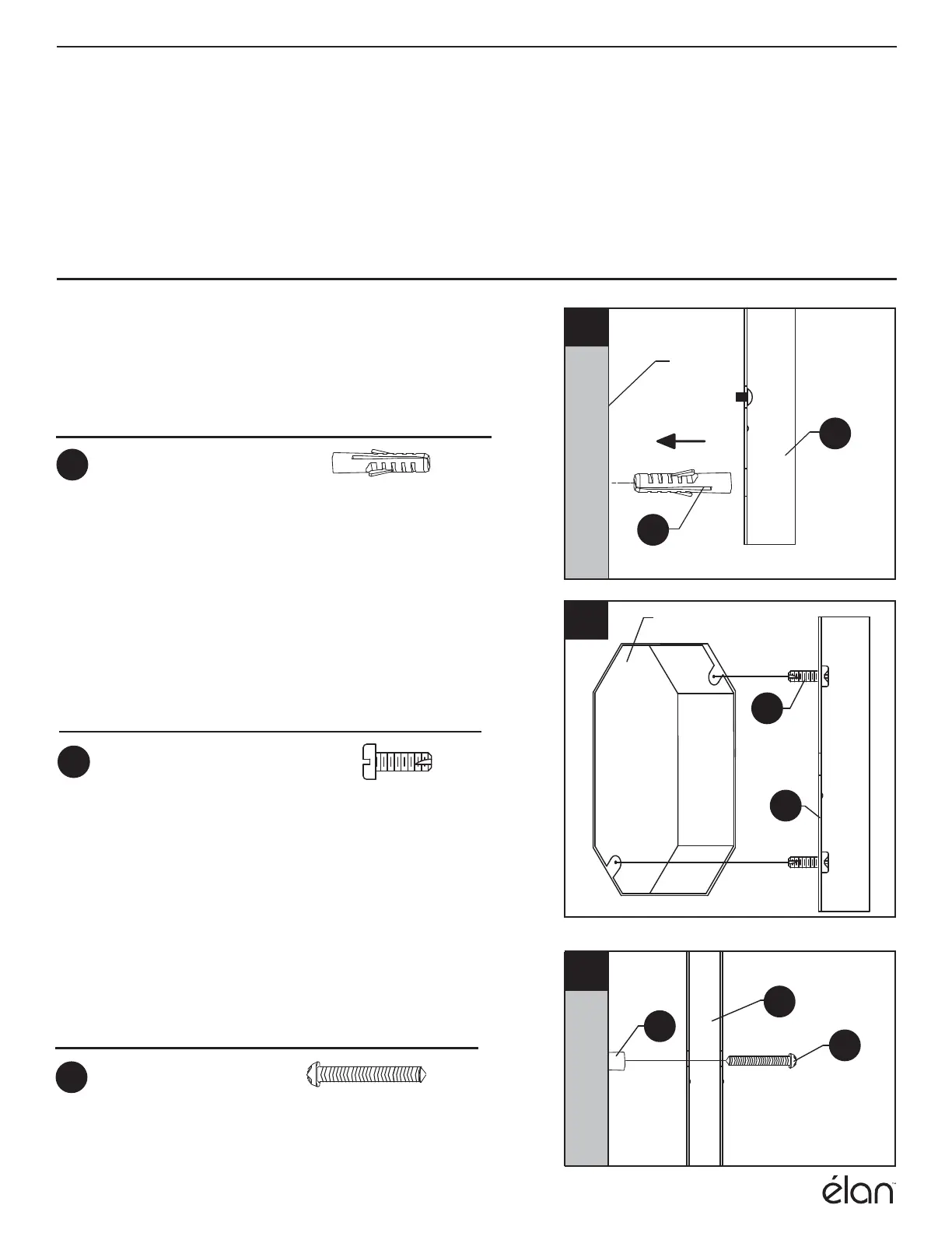
1. Temporarily raise mounting bracket (B) to wall.
Mark location for anchor (EE). Use 9/32 size drill
to drill holes for anchor (EE). Insert anchor (EE)
into hole.
x 2
Anchor
EE
Hardware Used
3. Screw anchor screws (FF) through mounting
bracket (B) and into anchors (EE).
x 2
FF
Anchor
Screws
3
FF
EE
B
PREPARATION
Before beginning assembly of product, make sure all parts are present. Compare parts with package
contents list. If any part is missing or damaged, do not attempt to assemble the product.
Estimated assembly time: 30 minutes to 1 hour
Tools Required for Assembly (not included): Phillips screwdriver, flathead screwdriver, wire strippers,
electrical tape, ladder, safety glasses.
ASSEMBLY INSTRUCTIONS
2. Connect the mounting bracket (B) to the outlet
box (not included) with short machine screws
(BB).
Short Machine
Screw
x 2BB
Hardware Used
2
B
BB
Outlet Box
1
Wall
EE
B
Bekijk gratis de handleiding van Elan Minse 83646, stel vragen en lees de antwoorden op veelvoorkomende problemen, of gebruik onze assistent om sneller informatie in de handleiding te vinden of uitleg te krijgen over specifieke functies.
Productinformatie
| Merk | Elan |
| Model | Minse 83646 |
| Categorie | Verlichting |
| Taal | Nederlands |
| Grootte | 1323 MB |







