Elan Minse 83646 handleiding
Handleiding
Je bekijkt pagina 14 van 16

14
INSTRUCTIONS POUR L'ASSEMBLAGE
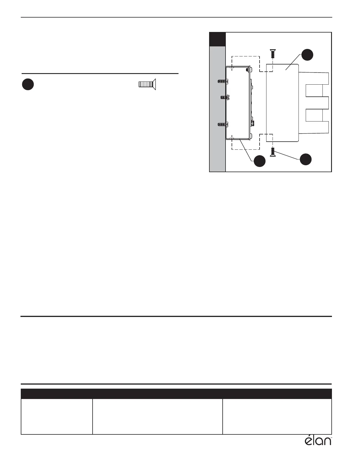
6.
Placez le pavillon (A) sur les support de
fixation (B) et fixez-le à l'aide des vis du
pavillon (CC).
x 4
CC
Vis du pavillon
Quincaillerie utilisée
6
A
CC
B
1. Vérifiez si le luminaire
est bien branché.
ENTRETIEN
DÉPANNAGE
• Vérifiez toujours que le courant est coupé avant de nettoyer le luminaire.
• Utilisez un linge doux et humide ainsi qu’un savon non abrasif. N’utilisez jamais de nettoyants
pour vitres; vous risqueriez d’endommager le fini métallique du luminaire.
Le luminaire
ne s’allume pas.
1. Le luminaire est mal branché.
PROBLÈME CAUSE POSSIBLE MESURE CORRECTIVE
Bekijk gratis de handleiding van Elan Minse 83646, stel vragen en lees de antwoorden op veelvoorkomende problemen, of gebruik onze assistent om sneller informatie in de handleiding te vinden of uitleg te krijgen over specifieke functies.
Productinformatie
| Merk | Elan |
| Model | Minse 83646 |
| Categorie | Verlichting |
| Taal | Nederlands |
| Grootte | 1323 MB |







