Elan Minse 83646 handleiding
Handleiding
Je bekijkt pagina 12 van 16

12
Quincaillerie utilisée
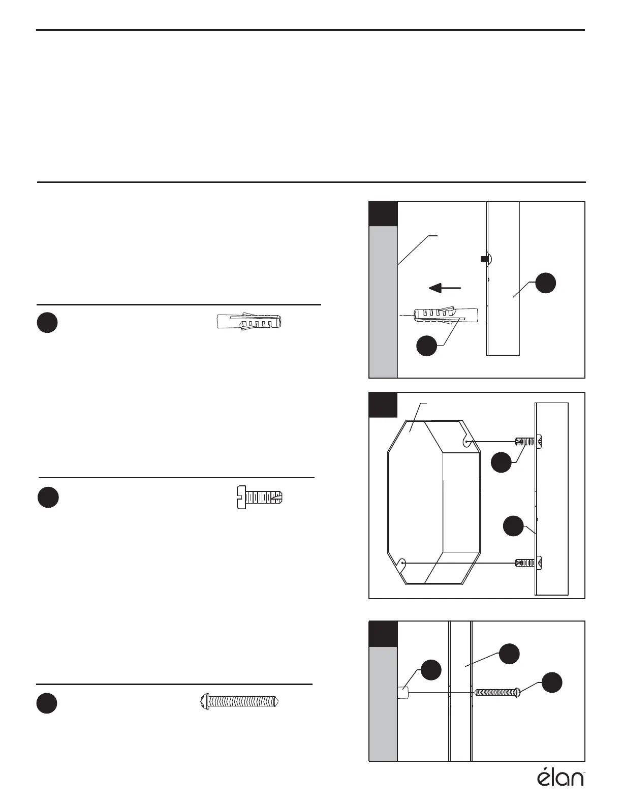
1. Placez temporairement le pavillon (B) contre le
mur. Marquez les emplacements des ancrages
(EE). Utilisez une perceuse équipée d'un foret de
9/32 po afin de percer les trous pour les ancrages
(EE). Insérez les ancrages (EE) dans les trous.
x 2
Ancrage
EE
Quincaillerie utilisée
3. Vissez les vis des pièces d'ancrage (FF) à
travers le pavillon (B) et dans les pièces
d'ancrage (EE).
x 2
FF
Vis de
l'ancrage
3
FF
EE
B
INSTRUCTIONS POUR L'ASSEMBLAGE
2. Fixez le support de fixation (B) à la boîte de
sortie à l'aide des vis à métaux courtes (BB).
Vis à métaux
courte
x 2BB
Quincaillerie utilisée
2
B
BB
Boîte de sortie
1
Mur
EE
B
PREPARATION
Avant de commencer l’assemblage du produit, assurez-vous d’avoir toutes les pièces. Comparez les
pièces dans l’emballage avec la liste du contenu. S’il y a des pièces manquantes ou endommagées,
ne tentez pas d’assembler le produit.
Temps d’assemblage approximatif : de 30 à 60 minutes
Outils requis pour l’assemblage (non fournis) : tournevis cruciforme, tournevis à tête plate, pinces à
dénuder, ruban isolant, échelle, lunettes de sécurité.
Bekijk gratis de handleiding van Elan Minse 83646, stel vragen en lees de antwoorden op veelvoorkomende problemen, of gebruik onze assistent om sneller informatie in de handleiding te vinden of uitleg te krijgen over specifieke functies.
Productinformatie
| Merk | Elan |
| Model | Minse 83646 |
| Categorie | Verlichting |
| Taal | Nederlands |
| Grootte | 1323 MB |







