Elan Alexa 83569 handleiding
Handleiding
Je bekijkt pagina 4 van 18

4
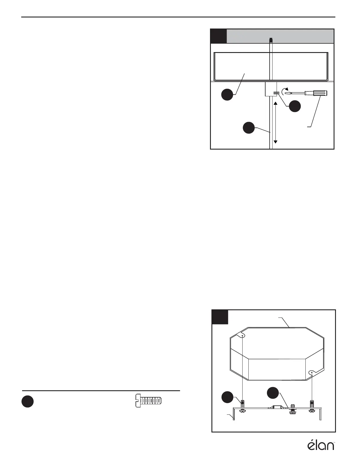
2. Orient the mounting bracket (L) so that the arms
are facing away from the outlet box (not
included). Connect the mounting bracket (L) to
the outlet box with short machine screws (BB).
Short Machine
Screw
x 2
BB
Hardware Used
1. The hanging length of the cord (E) for this
fixture is adjustable. Hold the fixture canopy
(K) up against the ceiling to determine the
desired length before the entire fixture is
assembled.
Cord (E) is held in place by a setscrew (F).
Loosen the setscrew (F) to release the cord
(K) for adjustment.
F
E
K
1
Screwdriver
(Included)
ASSEMBLY INSTRUCTIONS
2
Outlet Box
L
BB
Arm
Bekijk gratis de handleiding van Elan Alexa 83569, stel vragen en lees de antwoorden op veelvoorkomende problemen, of gebruik onze assistent om sneller informatie in de handleiding te vinden of uitleg te krijgen over specifieke functies.
Productinformatie
| Merk | Elan |
| Model | Alexa 83569 |
| Categorie | Verlichting |
| Taal | Nederlands |
| Grootte | 1605 MB |







