Ekko EB20E handleiding

25 pagina's
PDF beschikbaar

Handleiding

Je bekijkt pagina 5 van 25
4
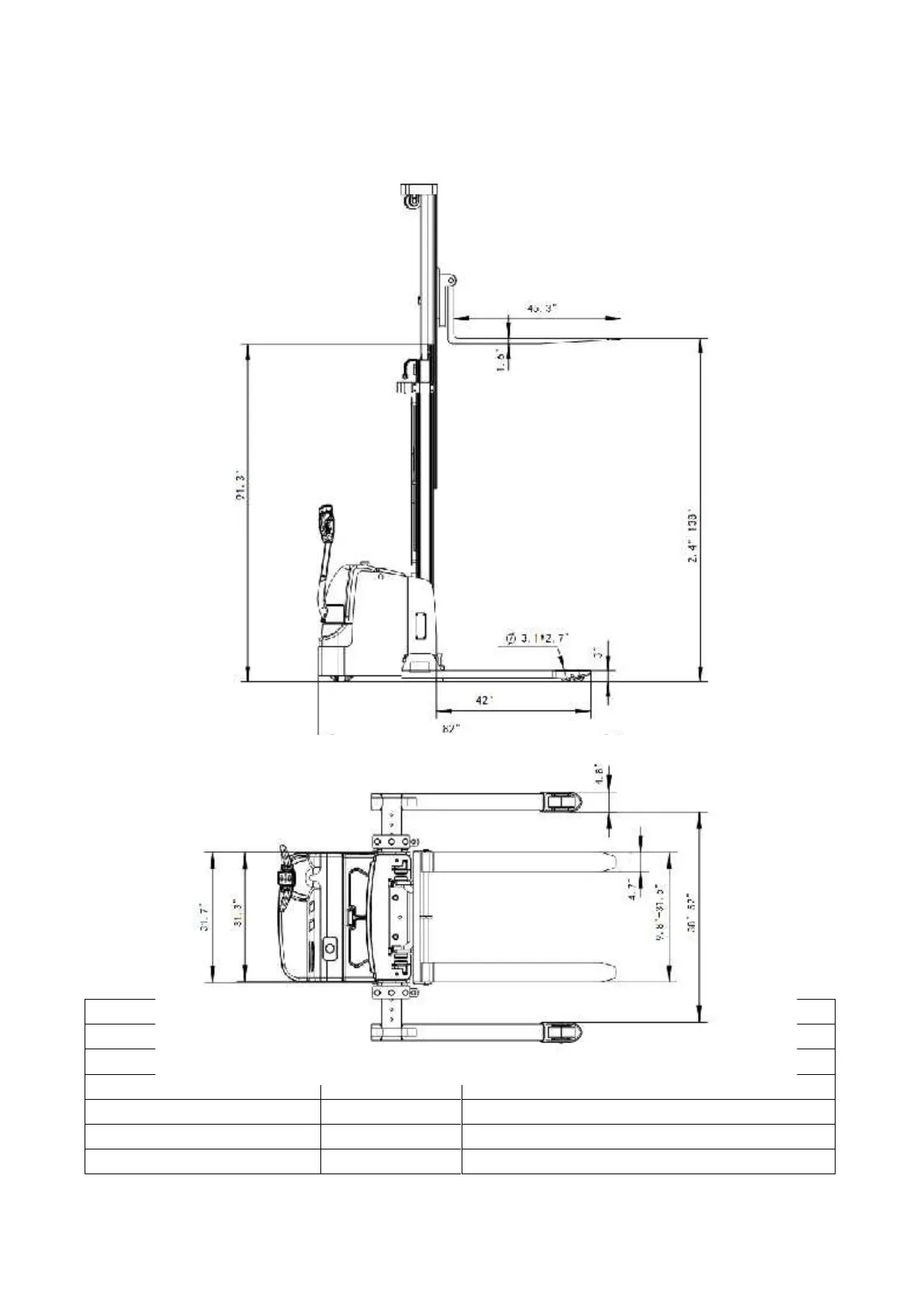
3.2Model
Mode
EB18E
Load Capacity
(lb)
4400
The max. Lifting height
(in)
138
Load center distance
(in)
24
Fork length
(in)
45.3
Single fork width
(in)
4.7
Overall fork height
(in)
9.8-31.5

Bekijk gratis de handleiding van Ekko EB20E, stel vragen en lees de antwoorden op veelvoorkomende problemen, of gebruik onze assistent om sneller informatie in de handleiding te vinden of uitleg te krijgen over specifieke functies.

Productinformatie

MerkEkko
ModelEB20E
CategorieNiet gecategoriseerd
TaalNederlands
Grootte3725 MB