Handleiding
Je bekijkt pagina 14 van 102

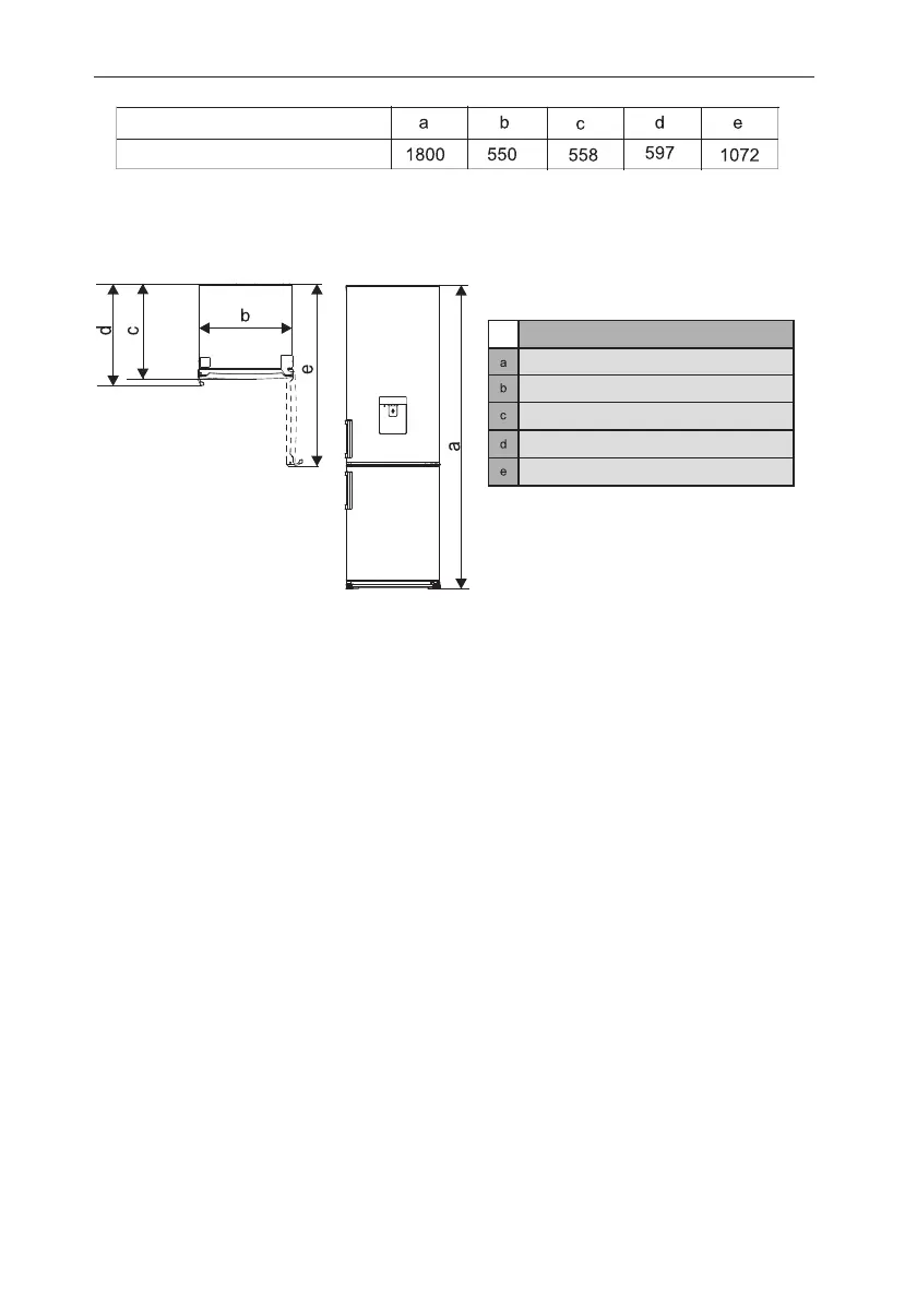
Parameter van apparaat
Technische eigenschappen
Hoogte
Breedte
Diepte (deur gesloten zonder handgreep)
Diepte (deur gesloten met handgreep)
Diepte (deur geopend)
Opmerking: Parameters in de tabel zijn ontwerpparameters. Vanwege de verschillende
redenen zal er een kleine afwijking zijn tussen de werkelijke afmeting en de ontwerpparameter.
De vermelde gegevens zijn alleen ter referentie.
14
EDHC8089
Bekijk gratis de handleiding van Edy EDHC8089, stel vragen en lees de antwoorden op veelvoorkomende problemen, of gebruik onze assistent om sneller informatie in de handleiding te vinden of uitleg te krijgen over specifieke functies.
Productinformatie
| Merk | Edy |
| Model | EDHC8089 |
| Categorie | Koelkast |
| Taal | Nederlands |
| Grootte | 13349 MB |



