Handleiding
Je bekijkt pagina 9 van 20

9
Note: The refrigerator should be installed on a rm and level surface that will be able to
support the entire weight of a fully loaded unit. It is important for the refrigerator to be level
in order to work properly. If needed, you can adjust the height of the refrigerator by rotating
the feet. See the “Leveling the Refrigerator” section.
Note: A standard electrical supply (115V AC only, 60 Hz), properly grounded in accordance
with National Electrical Code and local codes and ordinances, is required.
Notes:
• Choose a location that has ambient temperatures above 50° F and below 90° F. Operation
outside these temperatures may result in lowered eciency or cause other adverse eects.
• This unit MUST be installed in an area protected from the elements, e.g. wind, rain, water
spray or drips.
• The refrigerator should not be located next to ovens, grills, or other heat sources.
• Do not kink or pinch the power supply cord between the refrigerator and the wall or
cabinet.
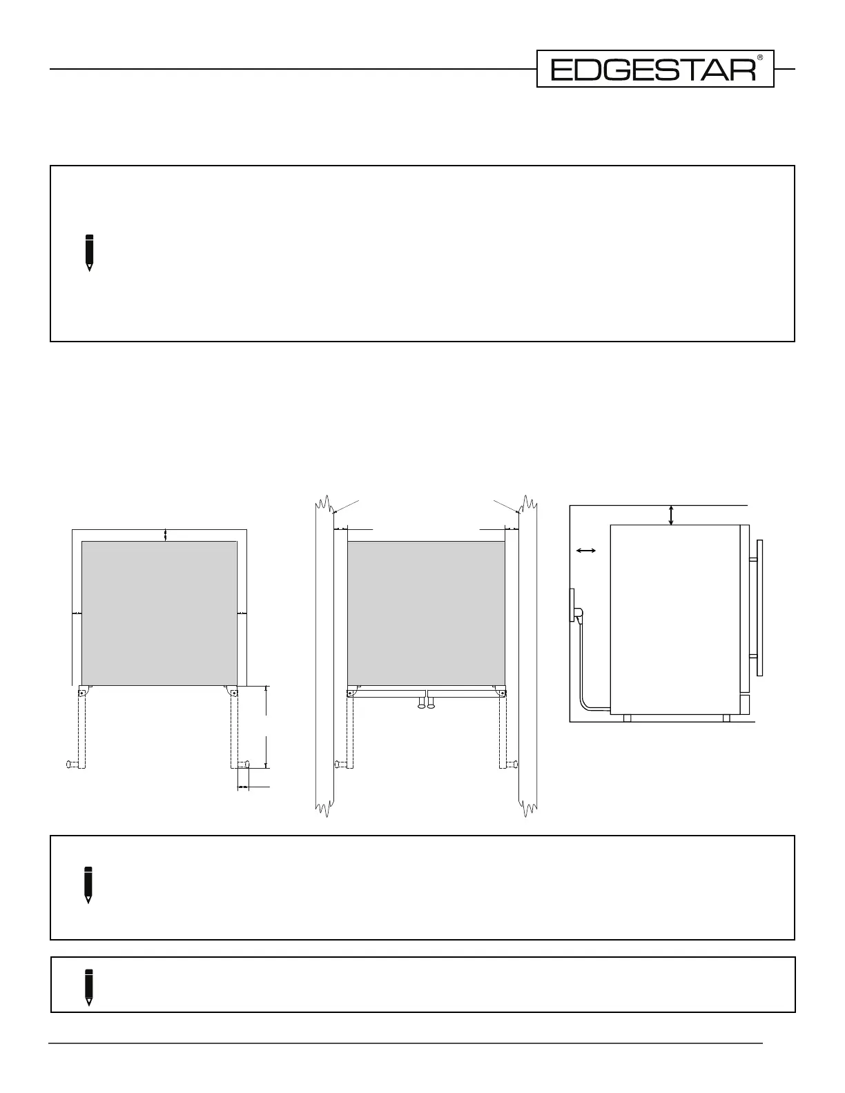
Clearance Requirements
When installing the refrigerator under a counter, follow the recommended spacing dimensions shown.
To ensure proper service access and ventilation, allow at least 1-2” of clearance at the back, 1/4” at
the top, and 1/4” at the sides. If the door side is against a wall, allow at least 2
5
/
16
” of clearance. The
installation should allow the unit to be pulled forward for servicing, if necessary.
Wall
2 /
16
”
Min.
1
/
8
”
Wall
2
/
16
”
Min.
1 - 2”
1/4”
1/4”
15 /
4
”
1/4”
1 - 2”
Top View: Side View:
Bekijk gratis de handleiding van Edgestar CWB2886FD, stel vragen en lees de antwoorden op veelvoorkomende problemen, of gebruik onze assistent om sneller informatie in de handleiding te vinden of uitleg te krijgen over specifieke functies.
Productinformatie
| Merk | Edgestar |
| Model | CWB2886FD |
| Categorie | Koelkast |
| Taal | Nederlands |
| Grootte | 1615 MB |







