Handleiding
Je bekijkt pagina 29 van 33

29
SESE
INSTALLATION AV KÖKSFLÄKTEN
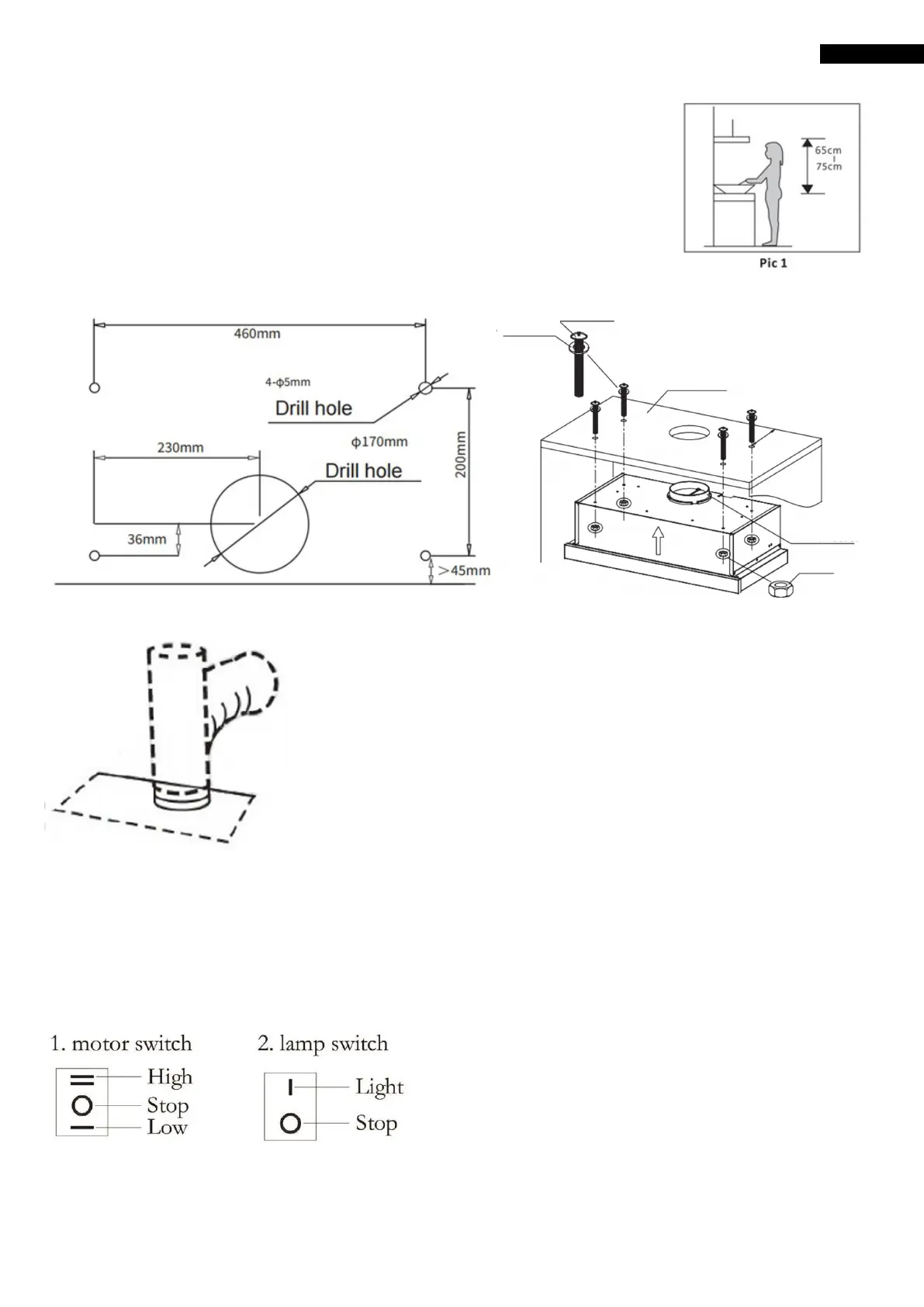
1. Fläkten bör placeras med ett avstånd på 65-75 cm från köksbänken för bästa effekt. (Se
figur 1)
2. Borra fyra hål på Ø 5 mm och ett hål på Ø 170 mm i botten av överskåpet (enligt figur 2 och 3).
3. Öppna filtren, håll fläkten på plats (i en rak linje), sätt i skruvar och expansionsgummipluggar och
dra åt skruvarna. Sätt fast filtren.
4. Efter att fläktkåpan har hängts upp, anslut den valfria ventilationskanalen (Ø 150 mm) till ventilen
ovanpå fläkten (figur 4). Sätt vid behov in den andra delen av ventilationskanalen i den förberedda
öppningen i väggen.
5. Sätt i strömsladden i eluttaget.
4 - ɸ 12 gasket
4 - M4×30
Cupboard
ɸ Air outlet
4 - M4
Fig. 2
Fig. 3
Fig. 4
KONTROLLPANEL
• Motorbrytaren har en hög och en låg hastighet, mittläget är stoppknappen.
• Lampknappen styr om lampan är tänd eller släckt.
Bekijk gratis de handleiding van Ecotronic EPO605S, stel vragen en lees de antwoorden op veelvoorkomende problemen, of gebruik onze assistent om sneller informatie in de handleiding te vinden of uitleg te krijgen over specifieke functies.
Productinformatie
| Merk | Ecotronic |
| Model | EPO605S |
| Categorie | Afzuigkap |
| Taal | Nederlands |
| Grootte | 4112 MB |







