ECG EDS 300763 BlackLine handleiding
Handleiding
Je bekijkt pagina 34 van 140

Deutsch
Deutsch
34
Anschließen des Sicherheitsschlauchs für die Wasserversorgung
1. Ziehen Sie den Sicherheits-Zulaufschlauch an der Rückseite der Spülmaschine vollständig heraus.
2. Setzen Sie das Endstück an die Wasserzuleitung mit 3/4 Gewinde auf und ziehen Sie die Verschraubung
fest.
3. Önen Sie den Zuleitungshahn vor dem Gebrauch der Spülmaschine.
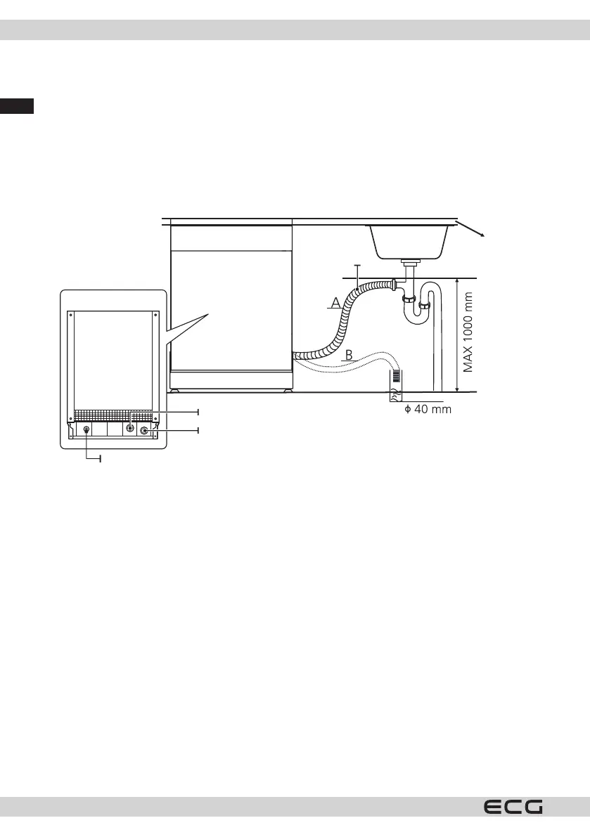
Anschließen des Ablaufschlauches
Schließen Sie den Ablaufschlauch an das Abussrohr mit einem Mindestdurchmesser von 4 cm an oder legen
Sie ihn in das Waschbecken, wobei er nicht gebogen oder geknickt sein kann. Der Schlauchausgang muss sich
in einer Höhe von weniger als 1000 mm benden. Das freie Ende des Schlauches darf nicht in Wasser getaucht
werden, um einen Wasserrückuss zu verhindern.
Abussrohr
Arbeitsbereich
Ablassschlauch
Wasserzufuhr
Abussrohr
Netzkabel
Rückseite der
Spülmaschine
Entfernen von Restwasser aus dem Schlauch
Wenn der Anschluss an die Ablaueitung höher als 1000 mm liegt, kann überschüssiges Wasser im
Ablaufschlauch bleiben. Lassen Sie in diesem Fall muss das Restwasser aus dem Schlauch in eine Schüssel oder
ein anderes geeignetes Gefäß abießen, das sich unterhalb des Spülbeckens bendet.
Wasserablauf
Anschluss des Ablaufschlauches. Der Ablaufschlauch muss perfekt abdichten, damit kein Wasser aus der
Verbindungsstelle austritt. Achten Sie darauf, dass der Ablaufschlauch nicht verdreht oder geknickt ist.
Verlängerungsschläuche
Wenn Sie den Ablaufschlauch verlängern möchten, verwenden Sie einen ähnlichen Typ. Er darf nicht länger als
4 m sein, da sonst die Leistung der Spülmaschine beeinträchtigt wird.
Anschluss der Wasserabsperrung
Der Anschluss des Ablaufschlauches muss maximal 1000 mm über dem Boden der Spülmaschine liegen.
Platzierung der Spülmaschine
Stellen Sie das Gerät an den gewünschten Ort. Die Rückseite sollte der Wand zugewandt sein und die Seiten
sollten angrenzenden Schränken oder Wänden zugewandt sein. Die Spülmaschine ist mit Schläuchen für den
Wasserzulauf und -ablauf ausgestattet, die rechts und links positioniert werden können und somit eine ideale
Installation ermöglichen.
Bekijk gratis de handleiding van ECG EDS 300763 BlackLine, stel vragen en lees de antwoorden op veelvoorkomende problemen, of gebruik onze assistent om sneller informatie in de handleiding te vinden of uitleg te krijgen over specifieke functies.
Productinformatie
Merk | ECG |
Model | EDS 300763 BlackLine |
Categorie | Vaatwasser |
Taal | Nederlands |
Grootte | 13930 MB |