Draper 62893 handleiding
Handleiding
Je bekijkt pagina 2 van 8

- 2 -
■STOCK No.62893 ■ PART No.DC25/45
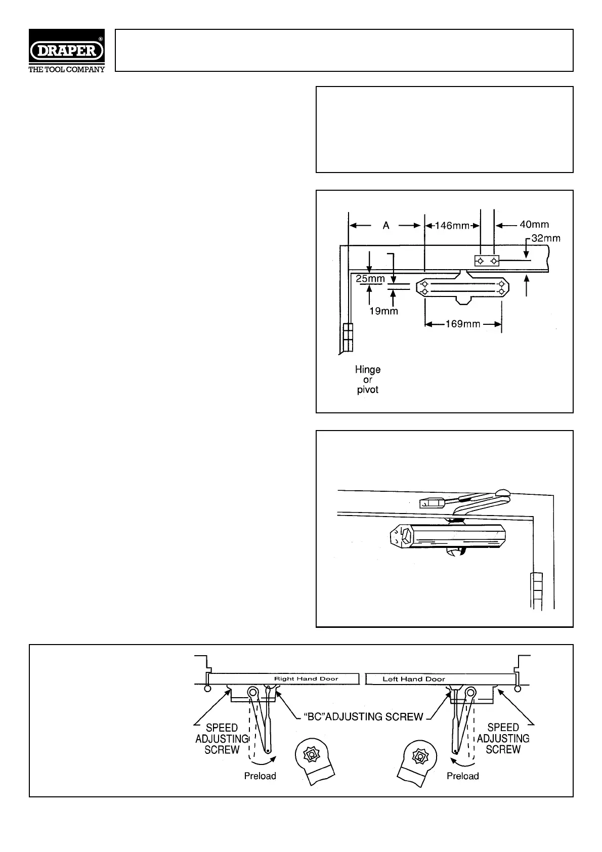
OPENING TO 120°
■DIMENSION A = 95mm
OPENING FROM 120° TO 180°
■DIMENSION A = 65mm
INSTALLATION INSTRUCTIONS FOR
REGULAR ARM (PULL SIDE) MOUNTING
This installation process covers regular arm
installations up to 180° openings.
1. Select the door opening angle and use the
dimensions shown opposite. Mark four holes on the
door for the door closer and two holes on the frame
for the arm shoe.
2. Drill 4mmØ pilot holes in the door and frame for the
fixings suppied.
3. Fix the forearm/arm shoe assembly to the door
frame using the fixings supplied.
4. Attach the closer to the door using the fixings
supplied.
Note: The speed adjusting valve must be positioned
towards the hinged edge of the door.
5. Install the main arm onto the top pinion shaft,
perpendicular to the door as illustrated below.
Tightly secure it in place using the screw/washer
assembly supplied.
6. Adjust the length of the forearm so that it is
perpendicular to the door frame when assembled to
preloaded main arm (see ‘top view’ illustration
below). Secure the forearm to the main arm using
the screw/washer assembly provided.
7. Snap the pinion cap over the pinion shaft at the
bottom of the closer unit.
8. Adjust the closing speed of the door using the
procedure detailed on page 5.
REGULAR ARM INSTALLATION
Closer installs on PULL/HINGE side of door
Illustrated
Left Hand Door-LH or
Right Hand Reverse-RHR
TYPICAL TOP VIEW
INSTALLATION
Bekijk gratis de handleiding van Draper 62893, stel vragen en lees de antwoorden op veelvoorkomende problemen, of gebruik onze assistent om sneller informatie in de handleiding te vinden of uitleg te krijgen over specifieke functies.
Productinformatie
| Merk | Draper |
| Model | 62893 |
| Categorie | Niet gecategoriseerd |
| Taal | Nederlands |
| Grootte | 733 MB |







