Handleiding
Je bekijkt pagina 65 van 116

www.domo-elektro.be 65
ES
INSTALACIÓN
• Retire todo el material de embalaje, tanto del interior como del exterior. Limpie el exterior del
aparato con un paño seco. El interior puede limpiarlo con un paño suave y húmedo. Después,
seque bien el aparato.
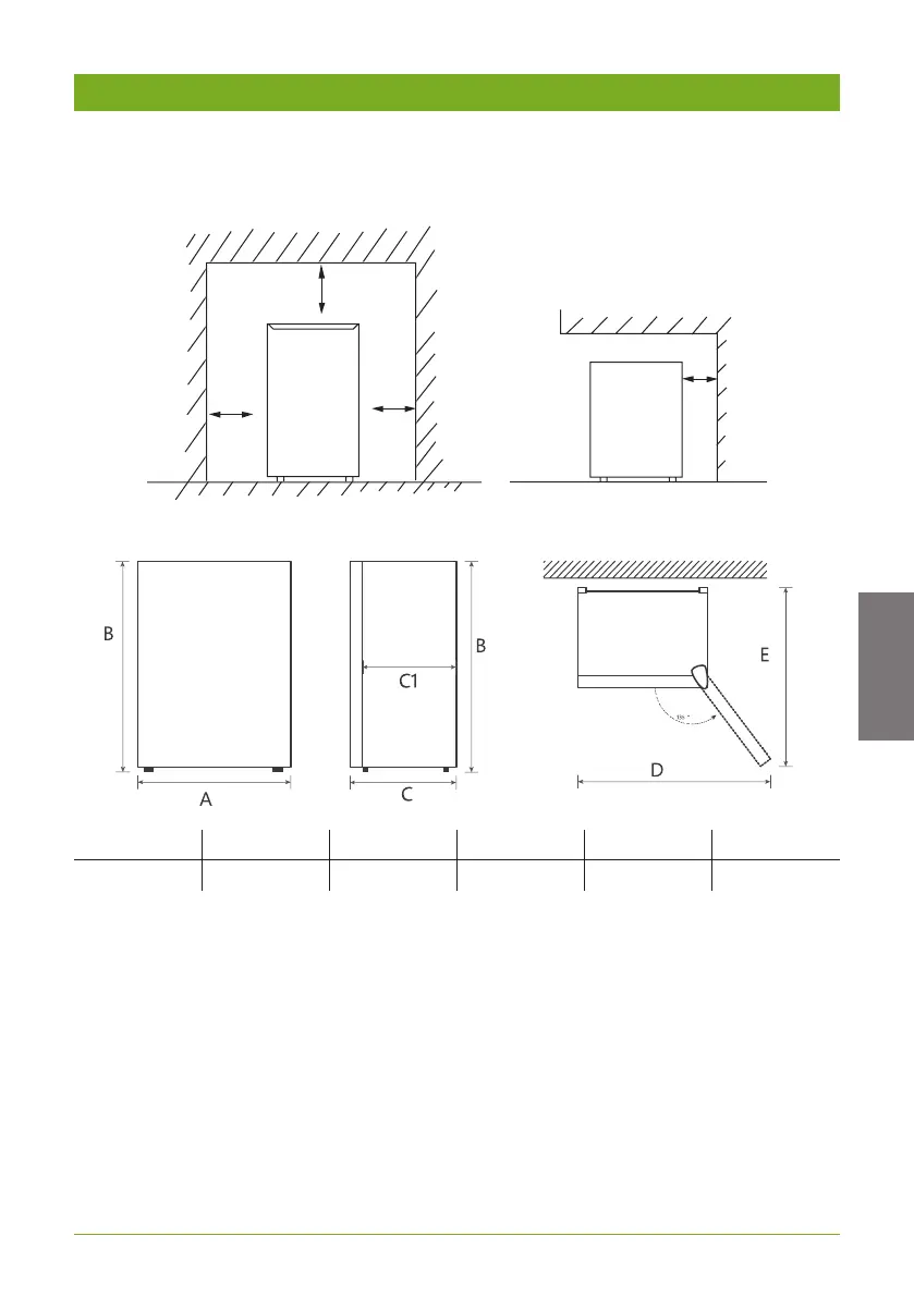
• Asegúrese de que pueda circular el aire alrededor del congelador.
• Asegúrese de disponer de suciente espacio para abrir la puerta.
• Este aparato de refrigeración no está diseñado para utilizarse como aparato integrado.
• Coloque el congelador sobre una supercie rme y nivelada.
• Evite la luz directa del sol y el calor. La luz solar puede deteriorar el exterior del congelador. El
calor aumentará el consumo.
• Evite un grado de humedad demasiado elevado. Demasiada humedad ambiental causará que
se forme hielo demasiado rápido en el congelador.
• Antes de conectar el congelador a la red eléctrica se debe comprobar que la tensión de la placa
de especicaciones del aparato se corresponde con el voltaje de su hogar. Otra tensión puede
dañar el aparato.
• El enchufe es la única forma de desconectar el aparato de la alimentación, asegúrese de que es
fácil acceder al mismo. Para desconectar la alimentación al aparato, apague el aparato y retire
el enchufe de la toma de corriente.
10 cm
10 cm
10 cm
7,5
cm
A B C C1 D E
47,5 cm 84,5 cm 44,5 cm 39 cm 79 cm 76,7 cm
Bekijk gratis de handleiding van Domo DO91137F, stel vragen en lees de antwoorden op veelvoorkomende problemen, of gebruik onze assistent om sneller informatie in de handleiding te vinden of uitleg te krijgen over specifieke functies.
Productinformatie
| Merk | Domo |
| Model | DO91137F |
| Categorie | Vriezer |
| Taal | Nederlands |
| Grootte | 9831 MB |



