Handleiding
Je bekijkt pagina 51 van 116

www.domo-elektro.be 51
EN
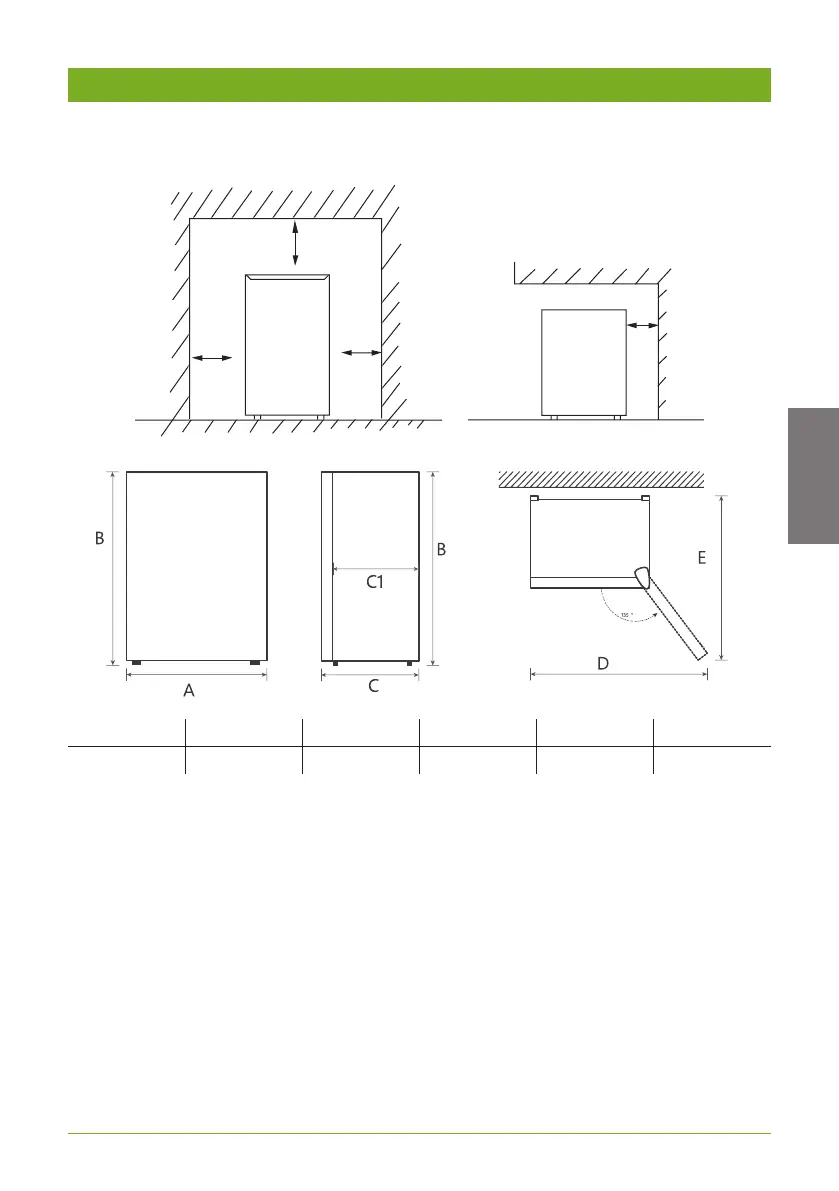
INSTALLATION
• Remove the exterior and interior packing, wipe the outside thoroughly with a soft dry cloth and
the inside with a wet, lukewarm cloth. Dry the appliance o well.
• Let air circulate freely around the cabinet.
• Make sure there is sucient space to open the door.
• This cooling unit is not intended for use as a built-in appliance.
• Select a place with a strong, level oor.
• Avoid direct sunlight and heat. Direct sunlight may aect the acrylic coating. Heat sources
nearby will cause higher electricity consumption.
• Avoid very moist places. Too much moisture in the air will cause frost to form very quickly in
your freezer.
• Before connecting your freezer to the power supply, check that the voltage stated on the rating
label of your appliance corresponds to the voltage in your home. A dierent voltage could
damage the appliance.
• The plug is the only way to disconnect the device from the power supply, make sure it is always
easily accessible. To disconnect power to the device, turn o the device and then unplug it.
• After installation, leave the freezer for 6 hours before turning it on. This way the refrigerant can
settle.
• Allow the appliance to run empty for 12 hours so the compartment can cool to the appropriate
temperature.
10 cm
10 cm
10 cm
7,5
cm
A B C C1 D E
47,5 cm 84,5 cm 44,5 cm 39 cm 79 cm 76,7 cm
Bekijk gratis de handleiding van Domo DO91137F, stel vragen en lees de antwoorden op veelvoorkomende problemen, of gebruik onze assistent om sneller informatie in de handleiding te vinden of uitleg te krijgen over specifieke functies.
Productinformatie
| Merk | Domo |
| Model | DO91137F |
| Categorie | Vriezer |
| Taal | Nederlands |
| Grootte | 9831 MB |



