Handleiding
Je bekijkt pagina 107 van 116

www.domo-elektro.be 107
SK
PRED PRVÝM POUŽITÍM
• Mrazničku rozbaľte, vyberte všetko príslušenstvo zvnútra prístroja. Z vonkajšej strany odlepte
ochranné a reklamné polepy. Vonkajší povrch dôkladne utrite suchou handrou a vnútro môžete
utrieť jemnou navlhčenou handričkou. Potom dôkladne vysušiť.
• Vyberte rovnú podlahu, s vysokou nosnosťou.
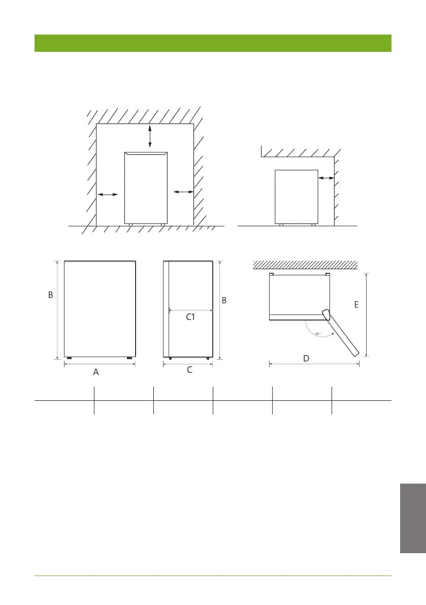
• Zaistite, aby okolo prístroja mohol voľne cirkulovať vzduch.
• Prístroj postavte tak, aby sa zabezpečilo dostatočné miesto na otvorenie dverí.
• Táto chladiaca jednotka nie je určená na použitie, ako vstavané zariadenie.
• Vyvarujte sa umiestnenia na priamy slnečný svit. Priame slnko spôsobuje zmenu farby povrchu.
Zvýšené teplo v okolí zvyšuje spotrebu prístroja a môže skracovať jeho životnosť.
• Vyvarujte sa veľmi vlhkému prostrediu. Veľká vlhkosť má za následok zvýšené namrazovanie
vnútorného priestoru a výparníka.
• Pred zapojením si dôkladne skontrolujte, či parametre vašej zástrčky korešpondujú s
požiadavkami na prístroji. Rozdielne parametre el. siete môžu prístroj poškodiť.
• Mrazák môžete odpojiť od elektrickej energie iba vypojením z el. siete, preto by mala byť
zástrčka stále prístupná. Ak chcete mrazničku odpojiť, nastavte ovládač do polohy OFF a
odpojte z el. siete.
• Po umiestnení nechajte prístroj aspoň 6 hodín stáť v pokoji a až potom ho zapnite. Pri
sťahovaní sa rozvírilo chladivo a je potrebné, aby sa znovu usadilo.
10 cm
10 cm
10 cm
7,5
cm
A B C C1 D E
47,5 cm 84,5 cm 44,5 cm 39 cm 79 cm 76,7 cm
Bekijk gratis de handleiding van Domo DO91137F, stel vragen en lees de antwoorden op veelvoorkomende problemen, of gebruik onze assistent om sneller informatie in de handleiding te vinden of uitleg te krijgen over specifieke functies.
Productinformatie
| Merk | Domo |
| Model | DO91137F |
| Categorie | Vriezer |
| Taal | Nederlands |
| Grootte | 9831 MB |



