Doepke DFA 2-1 handleiding
Handleiding
Je bekijkt pagina 11 van 24

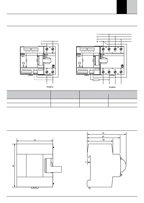
5.1. Verdrahtung der Fernauslösung
Wird bei einem betätigten RCCB die Fernauslösefunktion gewünscht, so ist er wie folgt elektrisch mit
dem DFA zu verbinden:
Fernantrieb DFA
zweipoliger
RCCB (DFS 2)
vierpoliger RCCB
DFS 4 DFS 4 R
Klemme 15 (Leiter Lx) Klemme 4 Klemme 4, 6 oder 8 Klemme 2, 4 oder 6
Klemme 16 (Neutralleiter N) Klemme 1 Klemme N oben Klemme N oben
!
Zwischen den Klemmen 15 und 16 darf eine Spannung von maximal 250 V
AC
anliegen. Die über
den RCCB angeschlossenen Verbraucher oder Steckdosen sind mit den beiliegenden Aufklebern
„Achtung! Netzspannung wird automatisch zugeschaltet!“ zu versehen.
5.2. Maße
ENDE
11
Bekijk gratis de handleiding van Doepke DFA 2-1, stel vragen en lees de antwoorden op veelvoorkomende problemen, of gebruik onze assistent om sneller informatie in de handleiding te vinden of uitleg te krijgen over specifieke functies.
Productinformatie
Merk | Doepke |
Model | DFA 2-1 |
Categorie | Niet gecategoriseerd |
Taal | Nederlands |
Grootte | 2062 MB |