Handleiding
Je bekijkt pagina 3 van 16

www.dimplex.eu 2111/B DE-3
IRM - Infrarotheizungen Deutsch
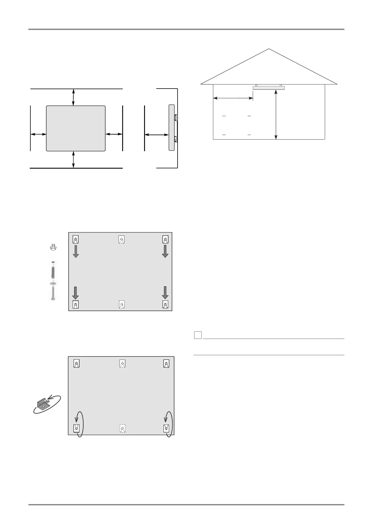
Die Montage an einer Holzwand ist zulässig.
Das Heizgerät muss an einer senkrechten Wand, wie
im Bild dargestellt, installiert werden. Die Mindestab-
stände müssen eingehalten werden. Ferner ist an der
Gerätevorderseite ein Abstand von 400 mm vorzuse-
hen. Alle Maße in mm.
Die Befestigungslöcher anzeichnen, bohren und
dübeln.
Schrauben mit Unterlegscheibe in die Wand ein-
drehen. Max. 4mm Abstand vorsehen zum Ein-
hängen der Wandhalter.
Wandhalter wie im Bild gezeigt ausrichten und
Heizgerät in die Halter einhängen.
Zwei der Wandhalter als Aushängesicherung um
ca. 180° verdrehen.
Befestigungsschrauben am Heizgerät (Schlüssel-
weite SW 8 mm) und Befestigungsschrauben für
die Wand (SW 10 mm) festdrehen.
Deckenmontage
Das Heizgerät muss an einer horizontalen Decke, wie
im Bild dargestellt, installiert werden. Die Maße x und
h sind Empfehlungen für eine angenehme Strah-
lungswirkung und können gegebenenfalls angepasst
werden (Mindestabstände beachten).
3. Elektrischer Anschluss
Die Spannungsangabe auf dem Typschild muss mit
der Netzspannung übereinstimmen.
Es ist empfehlenswert, für die Stromversorgung einen
eigenen Stromkreis vorzusehen.
Das Heizgerät ist für Festanschluss an eine Wandan-
schlussdose vorgesehen. Bei Wandmontage, Geräte-
anschlussleitung nach unten verlegen.
Das Gerät darf nur von einem Elektrofachmann nach
den geltenden Sicherheitsvorschriften installiert und
repariert werden.
Anschluss nur an fest verlegte Leitungen!
In der elektrischen Installation ist eine Trennvorrich-
tung vorzusehen mit mindestens 3 mm Kontaktöff-
nung an jedem Pol (z.B. Sicherungsautomat).
4. Heizbetrieb
HINWEIS
i
Das Gerät nur zur Raumlufterwärmung innerhalb ge-
schlossener Räume verwenden.
Der Betrieb des Heizgerätes ist ausschließlich zulässig
in Verbindung mit einem externen Raumthermostat,
der folgende Funktionen beinhaltet:
Elektronisch geregeltes Wochenprogramm,
adaptive Regelung des Heizbeginns,
weitere Energiesparfunktionen.
Bitte beachten Sie hierzu die Bedienungsanleitung
des Raumthermostaten.
Empfohlener Raumthermostat: Dimplex DTB 2R.
200
200
200
200
400
x
h
IRM 320/650 W:
x > 0,6 m, h > 2,5 m
IRM 800/1000 W::
x > 1,0 m, h > 3,0 m
Bekijk gratis de handleiding van Dimplex IRM 320W, stel vragen en lees de antwoorden op veelvoorkomende problemen, of gebruik onze assistent om sneller informatie in de handleiding te vinden of uitleg te krijgen over specifieke functies.
Productinformatie
Merk | Dimplex |
Model | IRM 320W |
Categorie | Heater |
Taal | Nederlands |
Grootte | 2141 MB |