Deye SUN-3K-SG04LP1-24-EU-SM1 handleiding
Handleiding
Je bekijkt pagina 15 van 57

- 13 -
ON
1 2
DIP Switch for
Parallel Function
().
().
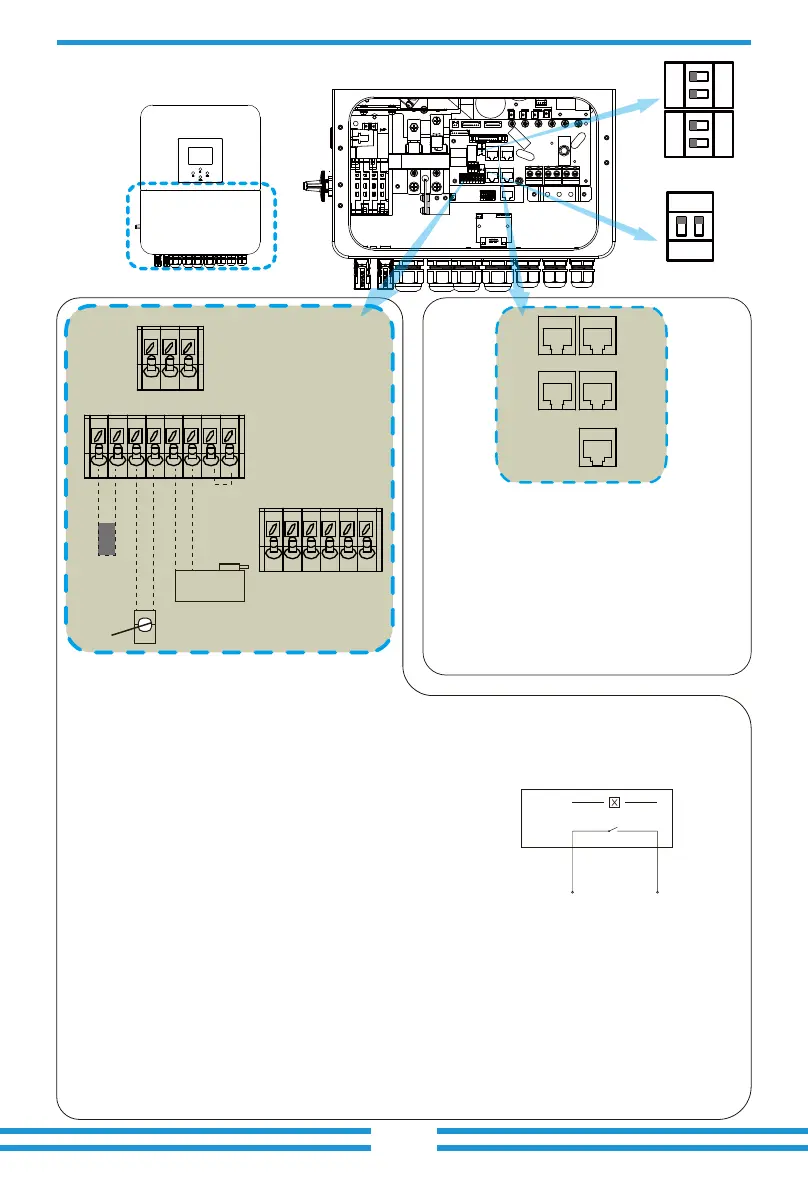
3.4.2 Func�on port defini�on
Inverter
Batt Temp
Sensor
CT Coil
Gen start-up
N/O Relay
1 2 3 4 5 6
B B + - 5 6
7 8
L
ATS240V
TEMP:1,2
CT:3,4
G-start:5,6
G-valve:7,8
RSD_short signal:B,B
RSD_voltage signal:+,-
RSD_12V_out:5,6
N
RS485/CAN
parallel_1 parallel_2
DRM
Meter
G-start/G-valve
(diesel generator startup signal)
relay
coil
open
contact
G start/valve
ON
1 2
ON
1 2
DIP Switch for ATS240V
:
Bekijk gratis de handleiding van Deye SUN-3K-SG04LP1-24-EU-SM1, stel vragen en lees de antwoorden op veelvoorkomende problemen, of gebruik onze assistent om sneller informatie in de handleiding te vinden of uitleg te krijgen over specifieke functies.
Productinformatie
| Merk | Deye |
| Model | SUN-3K-SG04LP1-24-EU-SM1 |
| Categorie | Niet gecategoriseerd |
| Taal | Nederlands |
| Grootte | 8881 MB |







