Deye SUN-10K-SG05LP1-EU-SM2 handleiding
Handleiding
Je bekijkt pagina 14 van 58

- 12 -
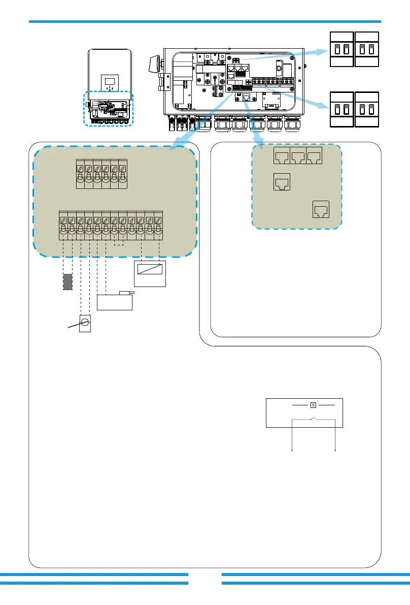
Batt Temp
Sensor
CT Coil
L
1 2 3 4 5 6
B B + - 1718
7 8
N
:
Gen start-up
N/O Relay
Neutral
Earth
Bond
240V Coil
ATS240V
G-start/G-valve
(diesel generator startup signal)
relay
coil
open
contact
G start/valve
RS 485/METER
parallel_1 parallel_2 BMS 485/
CAN
DRMs
.
.
TEMP:1,2
CT:3,4
G-start:5,6
G-valve:7,8
RSD_short signal:B,B
RSD_voltage signal:+,-
RSD_12V_out:17,18
3.4.2 Func�on port defini�on
DIP Switch for
Parallel Function
Inverter
ON
1 2
ON
1 2
ON
1 2
ON
1 2
DIP Switch for ATS240V
Bekijk gratis de handleiding van Deye SUN-10K-SG05LP1-EU-SM2, stel vragen en lees de antwoorden op veelvoorkomende problemen, of gebruik onze assistent om sneller informatie in de handleiding te vinden of uitleg te krijgen over specifieke functies.
Productinformatie
| Merk | Deye |
| Model | SUN-10K-SG05LP1-EU-SM2 |
| Categorie | Niet gecategoriseerd |
| Taal | Nederlands |
| Grootte | 9057 MB |







