Handleiding
Je bekijkt pagina 13 van 72

1313
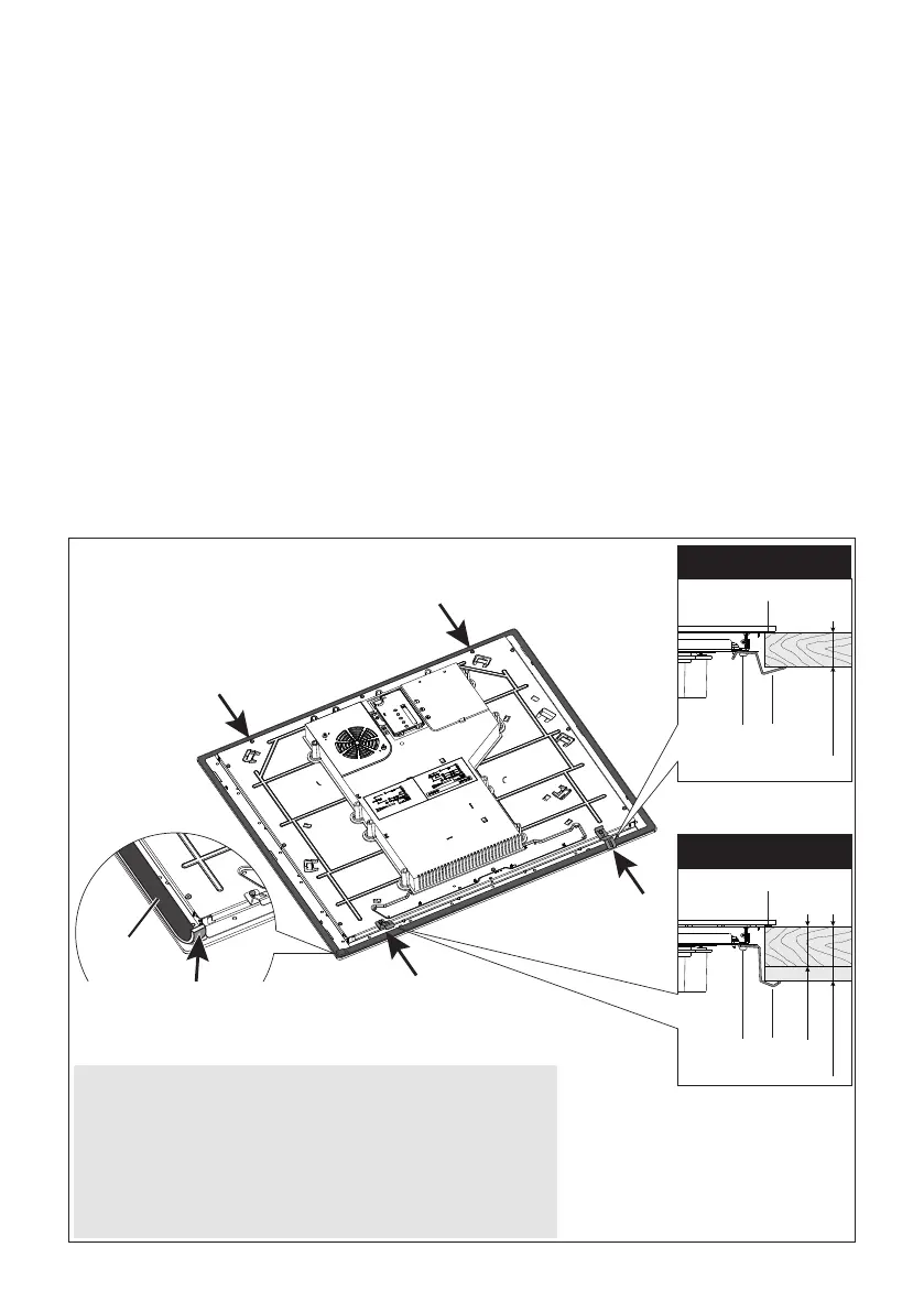
DE KOOKPLAAT BEVESTIGEN
Bij ieder toestel zijn beugels en schroeven meegeleverd voor de bevestiging aan een
werkblad met een dikte van 3 à 5 cm.
De bevestigingsset bevat 4 beugels “A” en 4 zelftappende schroeven “B” (afb. 1.5, 1.5a,
1.5b).
• Maak een opening in het werkblad.
• Draai de kookplaat ondersteboven en leg de glazen kant op een zacht oppervlak.
• Leg de pakking “C” langs de rand van de opening in het werkblad.
• Monteer de beugel “A” en draai de schroeven “B” een paar slagen aan, maar nog niet
vast. Let op dat de positie van de beugels overeenstemt met die in de afbeelding 1.5a
- 1.5b (afhankelijk van de dikte van het kookplaatoppervlak).
• Plaats het toestel in de opening en positioneer deze op de juiste manier.
• Zet de beugels “A” goed; Draai de schroeven “B” aan, zodat het komfoor goed vast
zit.
• Met behulp van een scherp mes, trim het overtollige afdichtingsmateriaal van de rand
van de kookplaat. Bezorg geen schade aan het keukenmeubel.
• Als u de kookplaat samen met het werkblad wilt installeren, vult u alle openingen
tussen het glas en langs de omtrek van het werkblad met isolerende siliconen en
veegt u het overtollige weg.
30 mm min50 mm max
40 mm
Adhesive side
A
A
C
C
B
B
Afb. 1.5
Afb. 1.5a
Afb. 1.5b
voorkant
achterkant
Kookplaatoppervlak
30 mm
Kookplaatoppervlak
40 tot 50 mm
BELANGRIJK: Spreid het afdichtingsmateriaal “C”
uit rond de rand van de kookplaat (rand van het glas).
Het afdichtingsmateriaal “C” moet correct worden
aangebracht om een perfecte afdichting tussen
het apparaat en de unit te garanderen. Als dit niet
correct gebeurt, kan dit onherstelbare schade aan
het apparaat veroorzaken.
C
Kant van het
afdichtingsmateriaal
Bekijk gratis de handleiding van Delonghi PIB 62 BE, stel vragen en lees de antwoorden op veelvoorkomende problemen, of gebruik onze assistent om sneller informatie in de handleiding te vinden of uitleg te krijgen over specifieke functies.
Productinformatie
| Merk | Delonghi |
| Model | PIB 62 BE |
| Categorie | Fornuis |
| Taal | Nederlands |
| Grootte | 5673 MB |







