Danfoss OSPB C F D L LS handleiding
Handleiding
Je bekijkt pagina 31 van 90

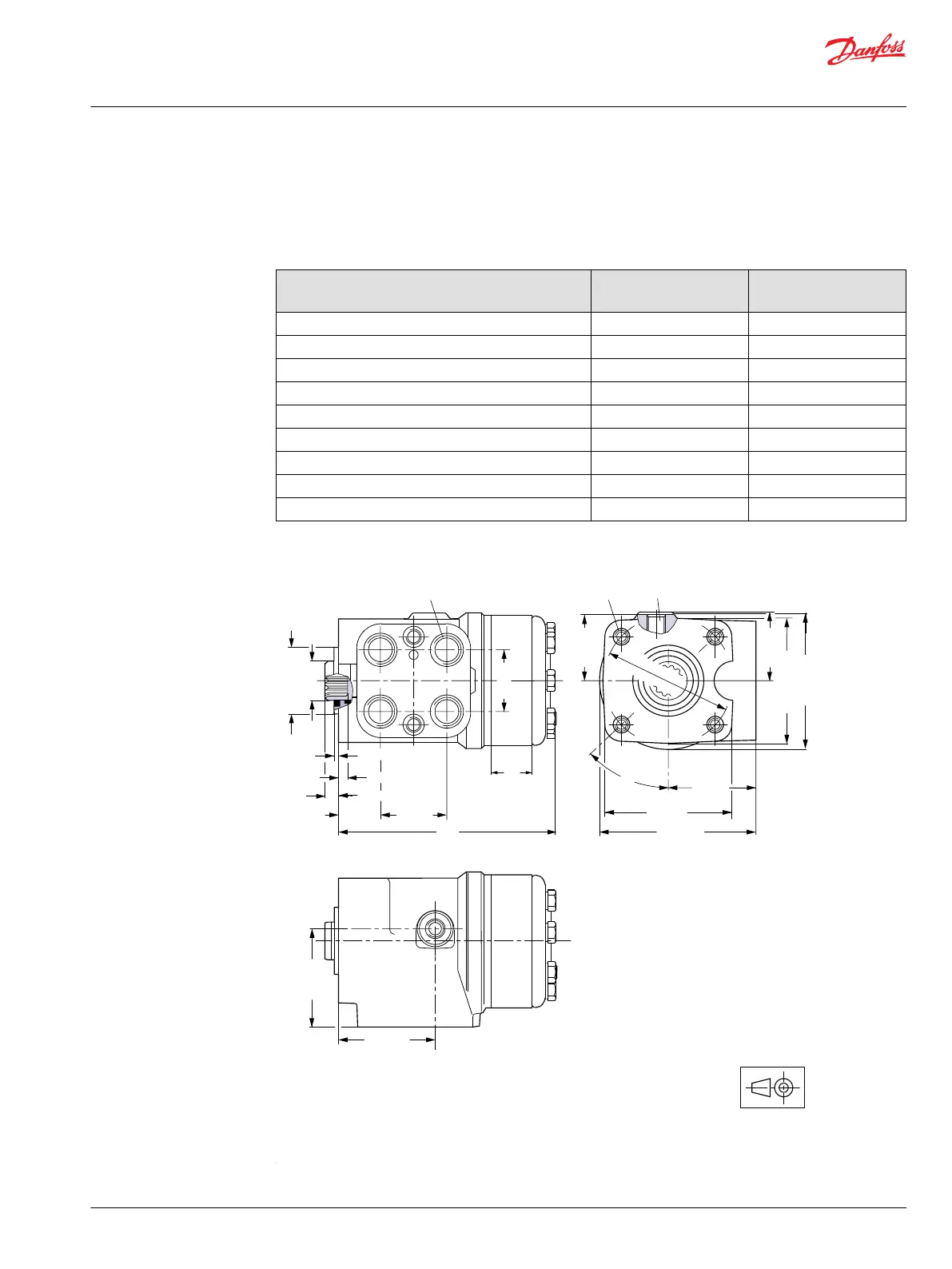
Dimensions
OSPB LS for OLS, OSPBX LS for OSQ
Dimensions for OSPB LS for OLS, OSPBX LS for OSQ
Type L
1
mm
[in]
L
2
mm
[in]
OSPB 50 126 [4.96] 6.5 [0.26]
OSPB 80 129 [5.08] 10.4 [0.41]
OSPB 100 132 [5.20] 13.0 [0.51]
OSPB 125 135 [5.31] 16.2 [0.64]
OSPB/OSPBX 160 140 [5.51] 20.8 [0.82]
OSPB/OSPBX 200 145 [5.71] 26.0 [1.02]
OSPB/OSPBX 250 151 [5.94] 32.5 [1.28]
OSPB/OSPBX 315 160 [6.30] 40.9 [1.61]
OSPB/OSPBX 400 171 [6.73] 52.0 [2.05]
Dimensions for OSPB LS for OLS, OSPBX LS for OSQ
150-590.11
66 [2.60]
Ø44.4 [1.748]
Ø25.4 [1.000]
44 [1.73]
44 [1.73]
47 [1.85]
max. 87 [3.42]
Ø91 [3.58]
64 [2.52]
2.8 [0.110]
min. 7.1 [0.280]
7 [0.28]
45˚
Ø82.3 [3.240]
Ø81.7 [3.217]
57 [2.24]
85 [3.35]
102 [4.02]
44 [1.73]
29 [1.14]
LS
B
A
L
2
L
1
LS
R
L
T P
Technical Information
OSPB/C/F/D/L LS Steering Units, OLS Priority Valves, OSQ Flow Amplifiers
LS Steering Units OSPB, OSPC, OSPF, OSPD, OSPL
©
Danfoss | April 2021 BC152886483962en-001003 | 31
Bekijk gratis de handleiding van Danfoss OSPB C F D L LS, stel vragen en lees de antwoorden op veelvoorkomende problemen, of gebruik onze assistent om sneller informatie in de handleiding te vinden of uitleg te krijgen over specifieke functies.
Productinformatie
Merk | Danfoss |
Model | OSPB C F D L LS |
Categorie | Niet gecategoriseerd |
Taal | Nederlands |
Grootte | 11908 MB |