Daikin VAM500J8VEB handleiding
Handleiding
Je bekijkt pagina 14 van 32

12 Electrical installation
Installation and operation manual
14
VAM350~2000J8VEB
Heat reclaim ventilation unit
4P664011-1 – 2021.08
12.2 Specifications for field supplied
fuses and wires
Power supply wiring
Field supplied fuses 6A/16A
Wire H05VV-U3G
Size Wire size MUST comply with the applicable
legislation.
Transmission wiring
Wiring Sheathed wire (2 wire)
Size 0.75~1.25mm²
Precautions
When connecting more than one wire to the power supply wiring,
use a 2mm² (Ø1.6mm) gauge wire.
When using 2 power wires of a gauge greater than 2 mm²
(Ø1.6mm), branch the line outside the terminal board of the unit, in
accordance with electrical equipment standards. The branch MUST
be sheathed to provide a degree of insulation equal to or greater
than the power supply wiring itself.
Keep the total current of crossover wiring between indoor units to
less than 12A.
Do NOT connect wires of different gauge to the same grounding
terminal. Loose connections may reduce the protection.
For the controller wiring, refer to the installation manual of the
controller delivered with the controller.
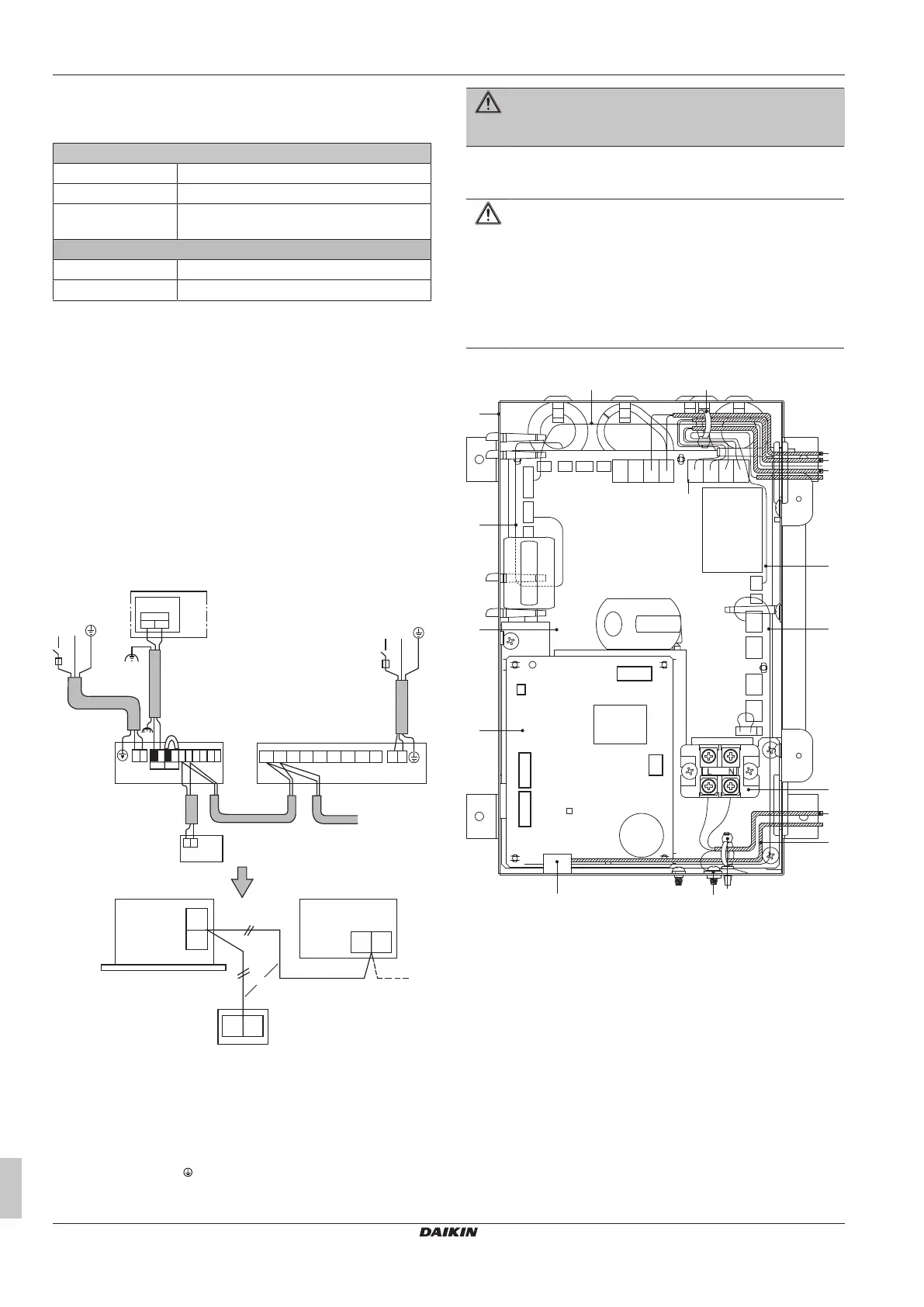
Wiring example
VRV
HRV
P1
P1
P1
P2
P2
P2
L
N
1 2
Out
VRV HRV
L
N
L N 1 12 2
P1 P2 F1 F1 T1 T1
P2 P1 F1 F2 J2 J3JC L NJ1
a
b
e
c
dd
g
f
f
a Outdoor unit/BS unit
b Switch box
c Indoor unit
d Power supply 220-240V~50/60Hz
e Controller for VRV
f Transmission wiring
g Controller for VAM
Use shielded cable for the transmission wiring. Ground the shield of
the shielded cable to at the grounding screw, with the C-cup
washer.
WARNING
The VAM and the EKVDX indoor unit MUST share the
same electrical safety devices and power supply.
12.3 Opening the switch box
CAUTION
Before opening the cover, be sure to turn off the power
switches of the main units and other devices connected to
the main units.
▪ Remove the screws that secure the cover and open the
switch box.
▪ Secure the power supply cable and the control wire
with a tie wrap, as shown in the figures.
Models 350~650
X33A
a
X14A
J3 J2 J1 JC F2F1P2P1
X35A
X24A
X29A
C-
C+
b
b
k
d+e
l
i
f
j
o
o
h
g
r
m
p
n m
Bekijk gratis de handleiding van Daikin VAM500J8VEB, stel vragen en lees de antwoorden op veelvoorkomende problemen, of gebruik onze assistent om sneller informatie in de handleiding te vinden of uitleg te krijgen over specifieke functies.
Productinformatie
Merk | Daikin |
Model | VAM500J8VEB |
Categorie | Niet gecategoriseerd |
Taal | Nederlands |
Grootte | 4596 MB |