Daikin VAM2000J8VEB handleiding
Handleiding
Je bekijkt pagina 16 van 32

12 Electrical installation
Installation and operation manual
16
VAM350~2000J8VEB
Heat reclaim ventilation unit
4P664011-1 – 2021.08
c
o
i
q
q
q
n
r
l
h
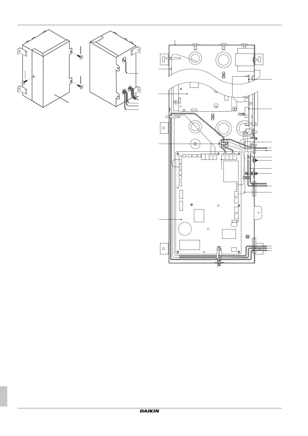
a Switch box
b PCB
c Switch box cover
d Securing screw and washer
e Grounding terminal
f Terminal board
g Transmission wiring terminal board (P1, P2, F1, F2)
h Transmission wiring (to optional controller)
Ii Power supply cable
j Wires for connection of additional external damper
(supplied accessory)
k Insulated splices-closed barrel connector (0.75mm²)
(field supply)
l Double or reinforced insulated flexible cable (0.75mm²)
to external damper (field supply)
m Tie wrap (field supply)
n BRP4A50A (optional accessory)
o KRP2A51 (optional accessory)
p CO₂sensor (optional accessory)
q Tapping screw
r Wires for fresh-up operation
Models 1500+2000
a
g
p
b
m
b
b
b
f
k
i
m
l
j
r
n
h
m
d+e
o
A1P
X24A
X29A
X27A
X35A
X14A
X33A
F2
F1
P2
P1
J3
J2
J1
JC
Bekijk gratis de handleiding van Daikin VAM2000J8VEB, stel vragen en lees de antwoorden op veelvoorkomende problemen, of gebruik onze assistent om sneller informatie in de handleiding te vinden of uitleg te krijgen over specifieke functies.
Productinformatie
| Merk | Daikin |
| Model | VAM2000J8VEB |
| Categorie | Niet gecategoriseerd |
| Taal | Nederlands |
| Grootte | 4596 MB |







