Daikin RYYQ20U7Y1B handleiding
Handleiding
Je bekijkt pagina 44 van 48

20 Technical data
Installation and operation manual
44
RYYQ+RYMQ+RXYQ
VRV IV+ heat pump
4P546220-1F – 2023.01
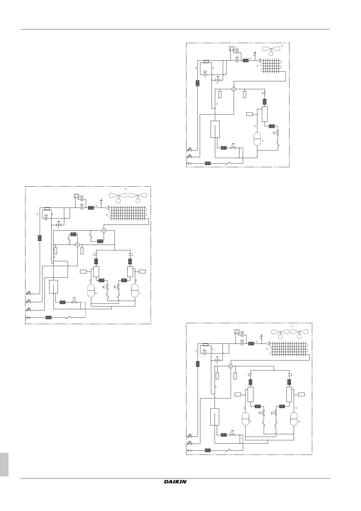
a Compressor
(M1C)
m Solenoid valve,
oil1 (Y3S)
b Compressor
(M2C)
n Solenoid valve,
oil2 (Y4S)
c Heat exchanger o 4‑way valve, main
(Y1S)
d Fan p 4‑way valve, sub
(Y5S)
e Fan motor (M1F,
M2F)
q Electrical
component box
f Accumulator r Service port,
refrigerant charge
g Expansion valve,
main (Y1E)
s Stop valve, liquid
h Expansion valve,
subcool heat
exchanger (Y2E)
t Stop valve, gas
i Expansion valve,
storage vessel
(Y4E)
u Stop valve,
equalising gas
j Subcool heat
exchanger
v Heat
accumulation
element
k Oil separator w Service port
l Solenoid valve, oil
accumulator
(Y2S)
x Expansion valve,
liquid cooling
(Y3E)
Piping diagram: RYMQ14~20
R3T
R6TR5T
R7T
R1T
R21T R22T
a
b
nm
k k
f
l
j
o
p
h
e
d d
e
c
sv
M
sv
INV INV
sv
M2F
M
M1F
M2C
M1C
(S1NPH)
(S1PH)
(S2PH)
(S1NPL)
t
u
s
HPS
R9TR8T
HPS
r
R4T
g
x
w
a Compressor
(M1C)
m Solenoid valve,
oil1 (Y3S)
b Compressor
(M2C)
n Solenoid valve,
oil2 (Y4S)
c Heat exchanger o 4‑way valve, main
(Y1S)
d Fan p 4‑way valve, sub
(Y5S)
e Fan motor (M1F,
M2F)
q Electrical
component box
f Accumulator r Service port,
refrigerant charge
g Expansion valve,
main (Y1E)
s Stop valve, liquid
h Expansion valve,
subcool heat
exchanger (Y2E)
t Stop valve, gas
i Expansion valve,
storage vessel
(Y4E)
u Stop valve,
equalising gas
j Subcool heat
exchanger
v Heat
accumulation
element
k Oil separator w Service port
l Solenoid valve, oil
accumulator
(Y2S)
x Expansion valve,
liquid cooling
(Y3E)
Piping diagram: RXYQ8~12
R3T
R6T
R5T
R7T
R1T
R21T
j
h
e
c
o
f
l
m
k
a
d
t
s
r
INV
M
sv
sv
M1C
M1F
(S1NPL)
(S1NPH)
(S1PH)
HPS
R8T
R4T
g
x
w
a Compressor
(M1C)
m Solenoid valve,
oil1 (Y3S)
b Compressor
(M2C)
n Solenoid valve,
oil2 (Y4S)
c Heat exchanger o 4‑way valve, main
(Y1S)
d Fan p 4‑way valve, sub
(Y5S)
e Fan motor (M1F,
M2F)
q Electrical
component box
f Accumulator r Service port,
refrigerant charge
g Expansion valve,
main (Y1E)
s Stop valve, liquid
h Expansion valve,
subcool heat
exchanger (Y2E)
t Stop valve, gas
i Expansion valve,
storage vessel
(Y4E)
u Stop valve,
equalising gas
j Subcool heat
exchanger
v Heat
accumulation
element
k Oil separator w Service port
l Solenoid valve, oil
accumulator
(Y2S)
x Expansion valve,
liquid cooling
(Y3E)
Piping diagram: RXYQ14~20
a
b
k k
nm
f
l
j
o
t
s
h
c
e
d d
e
M
sv
sv
INV INV
sv
M1C
M2C
M1F
M
M2F
(S1NPH)
(S1NPL)
(S1PH) (S2PH)
HPS
R6T
R5T
R1T
R9TR8T
R21T
R22T
R3T
HPS
r
R4T
g
x
w
a Compressor
(M1C)
m Solenoid valve,
oil1 (Y3S)
Bekijk gratis de handleiding van Daikin RYYQ20U7Y1B, stel vragen en lees de antwoorden op veelvoorkomende problemen, of gebruik onze assistent om sneller informatie in de handleiding te vinden of uitleg te krijgen over specifieke functies.
Productinformatie
Merk | Daikin |
Model | RYYQ20U7Y1B |
Categorie | Niet gecategoriseerd |
Taal | Nederlands |
Grootte | 8429 MB |